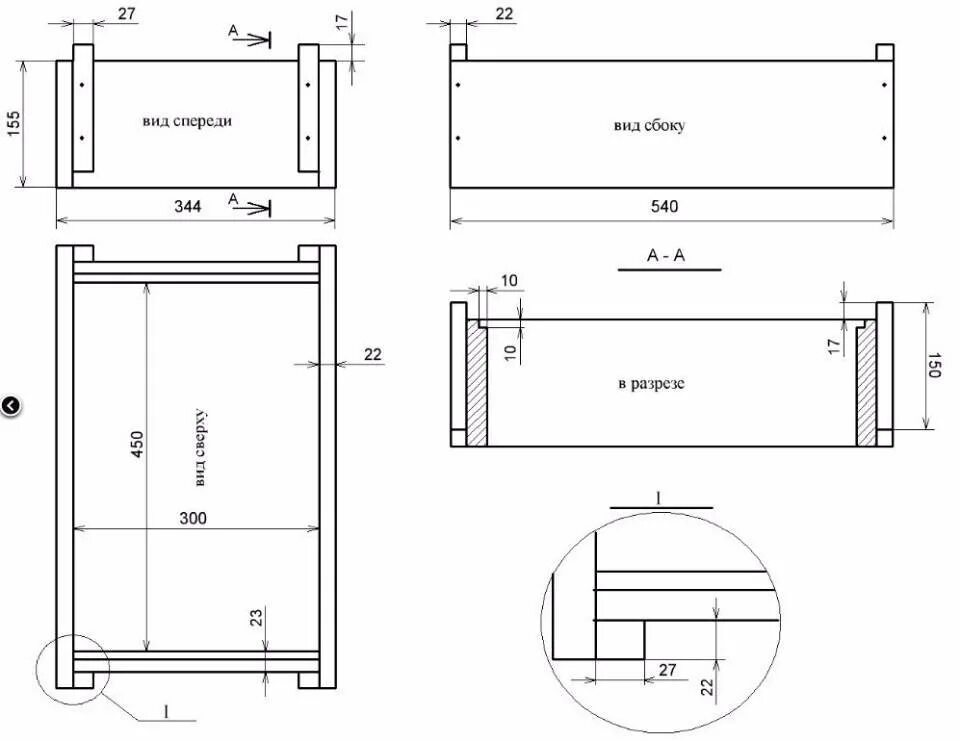
Сделаем внутренний размер