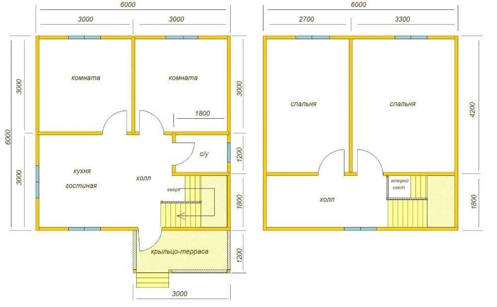
Сделай дома 6