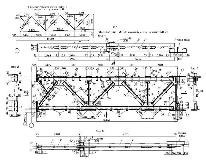
Сечение элементов фермы