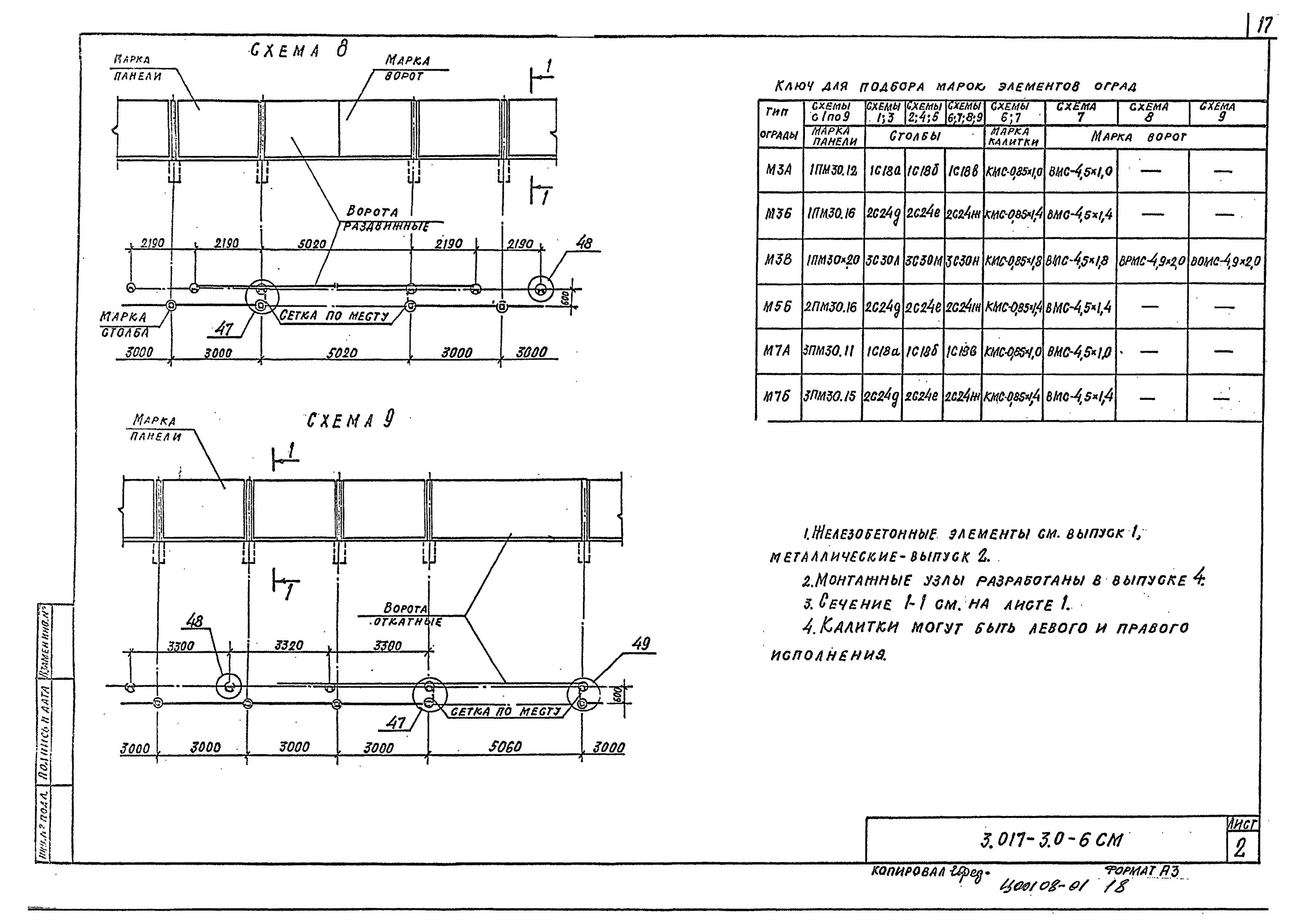
Сечение лист 2