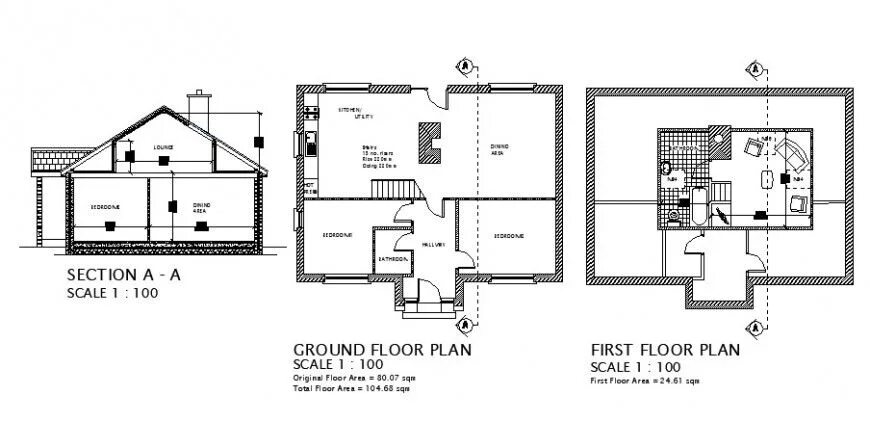
Section 1 and 2