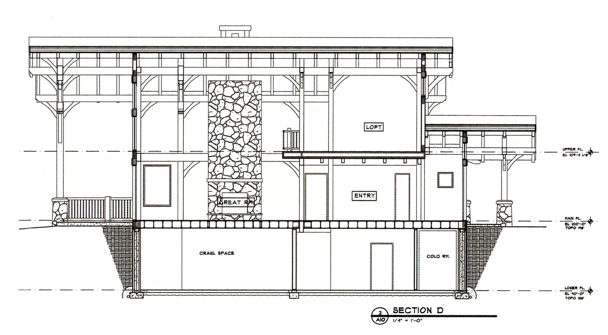
Section drawing