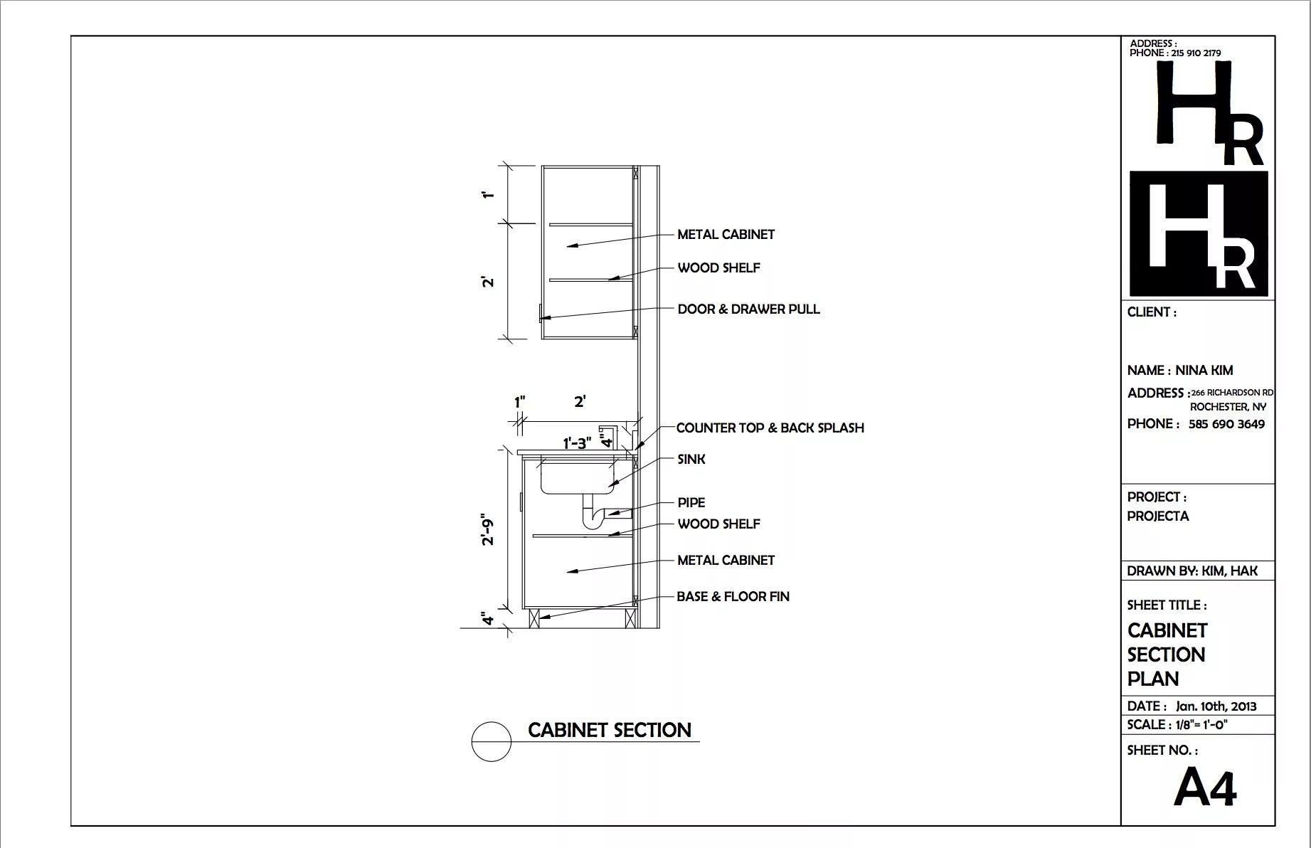
Section name