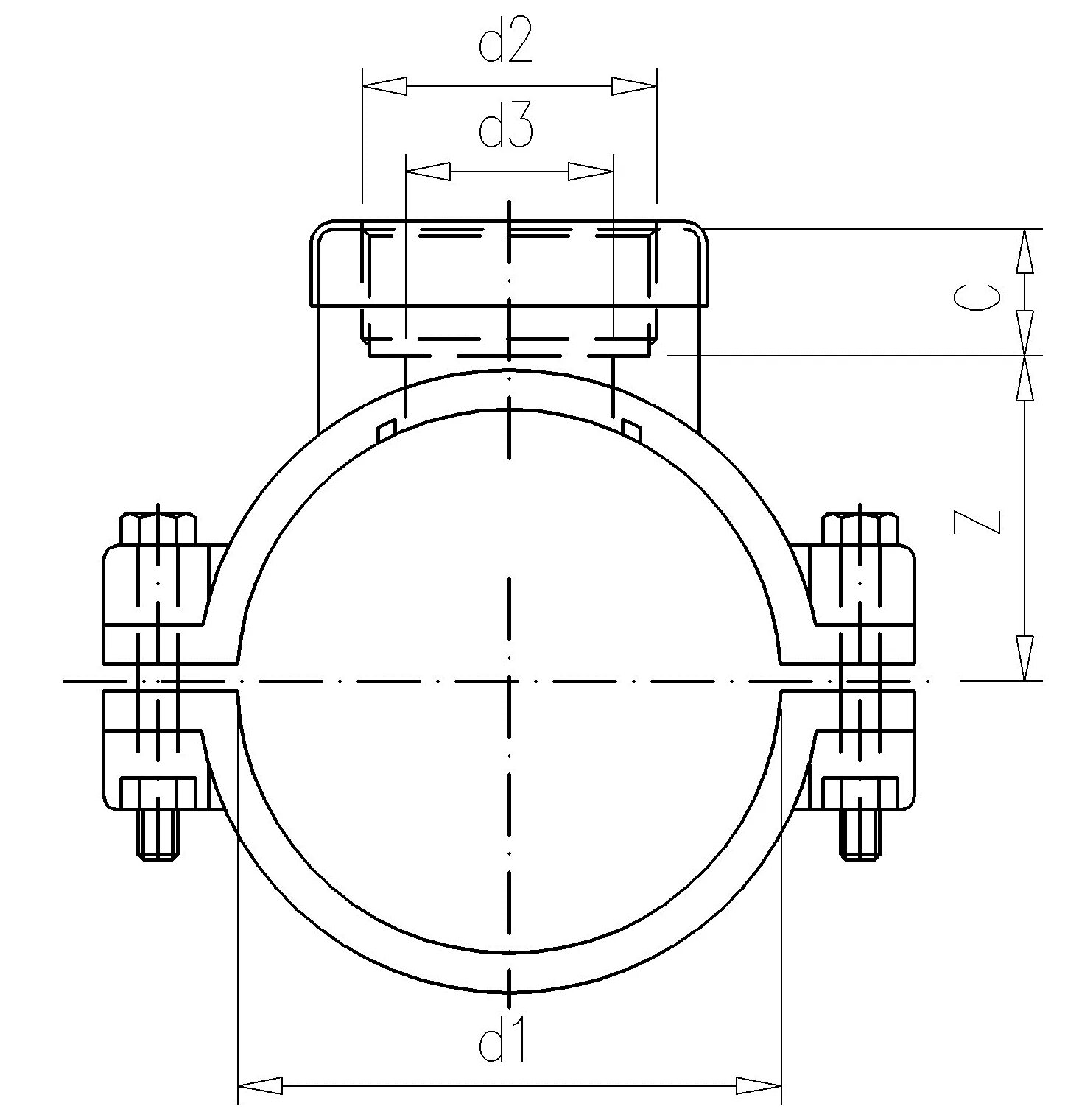
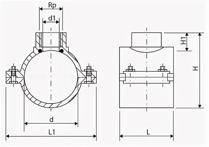
Седелка размеры