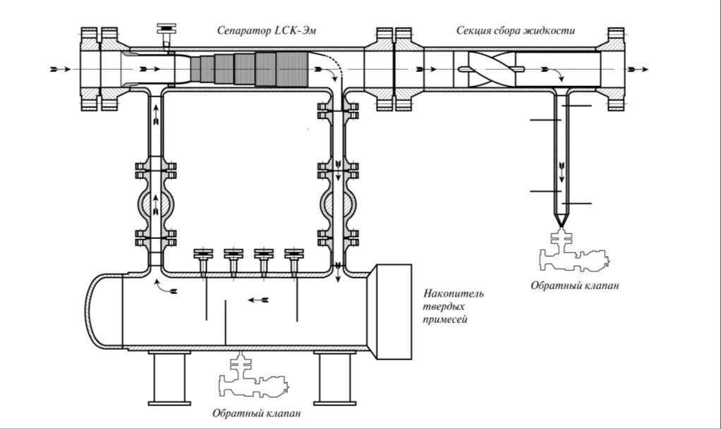
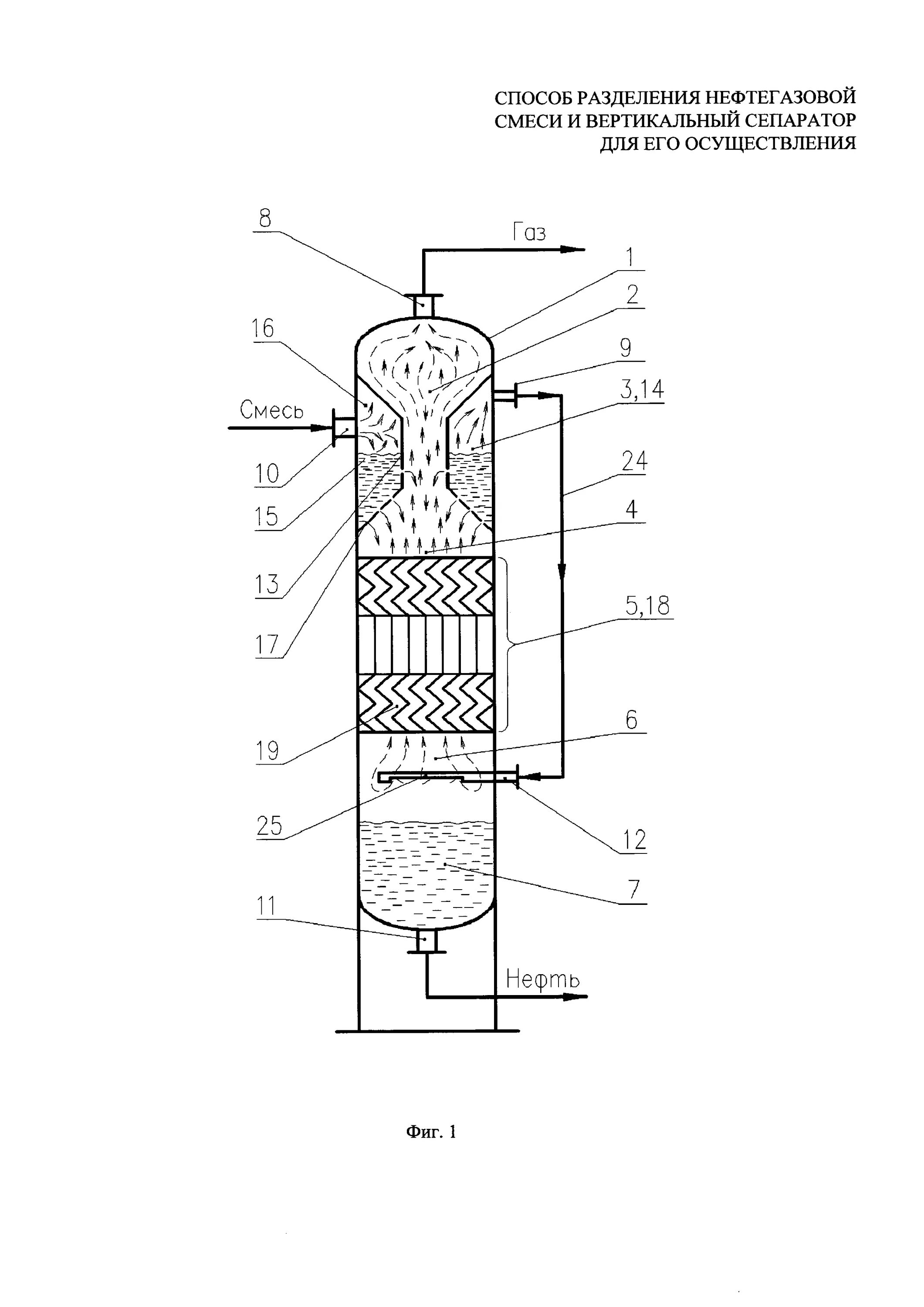
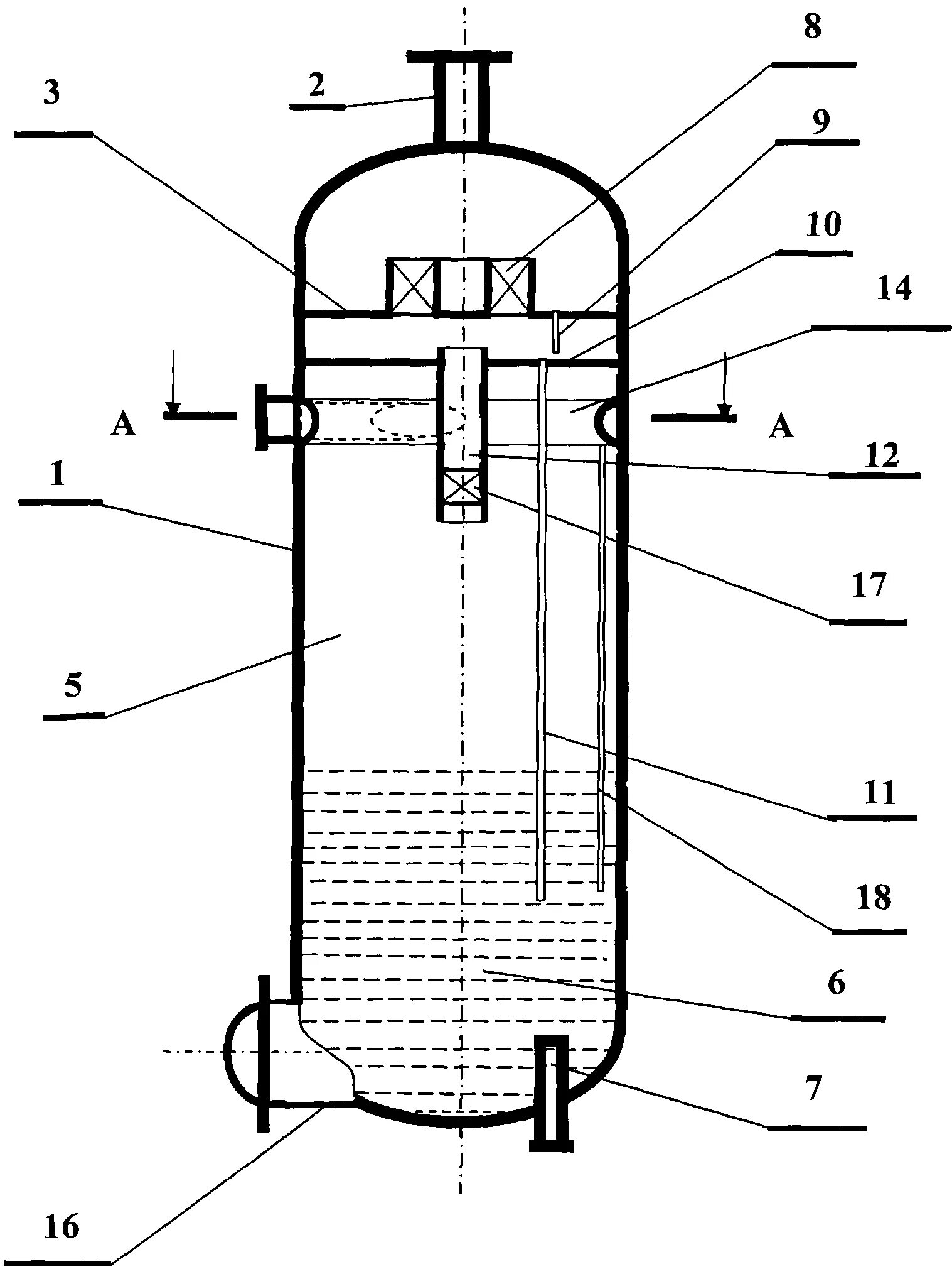
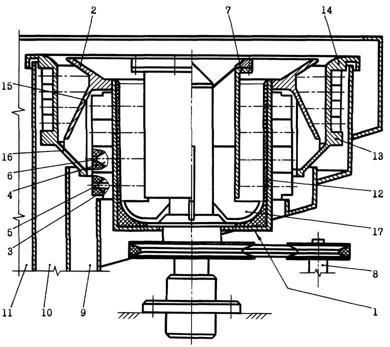
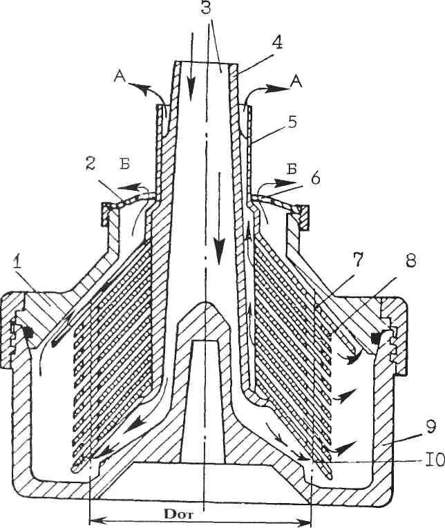
Секции сепаратора