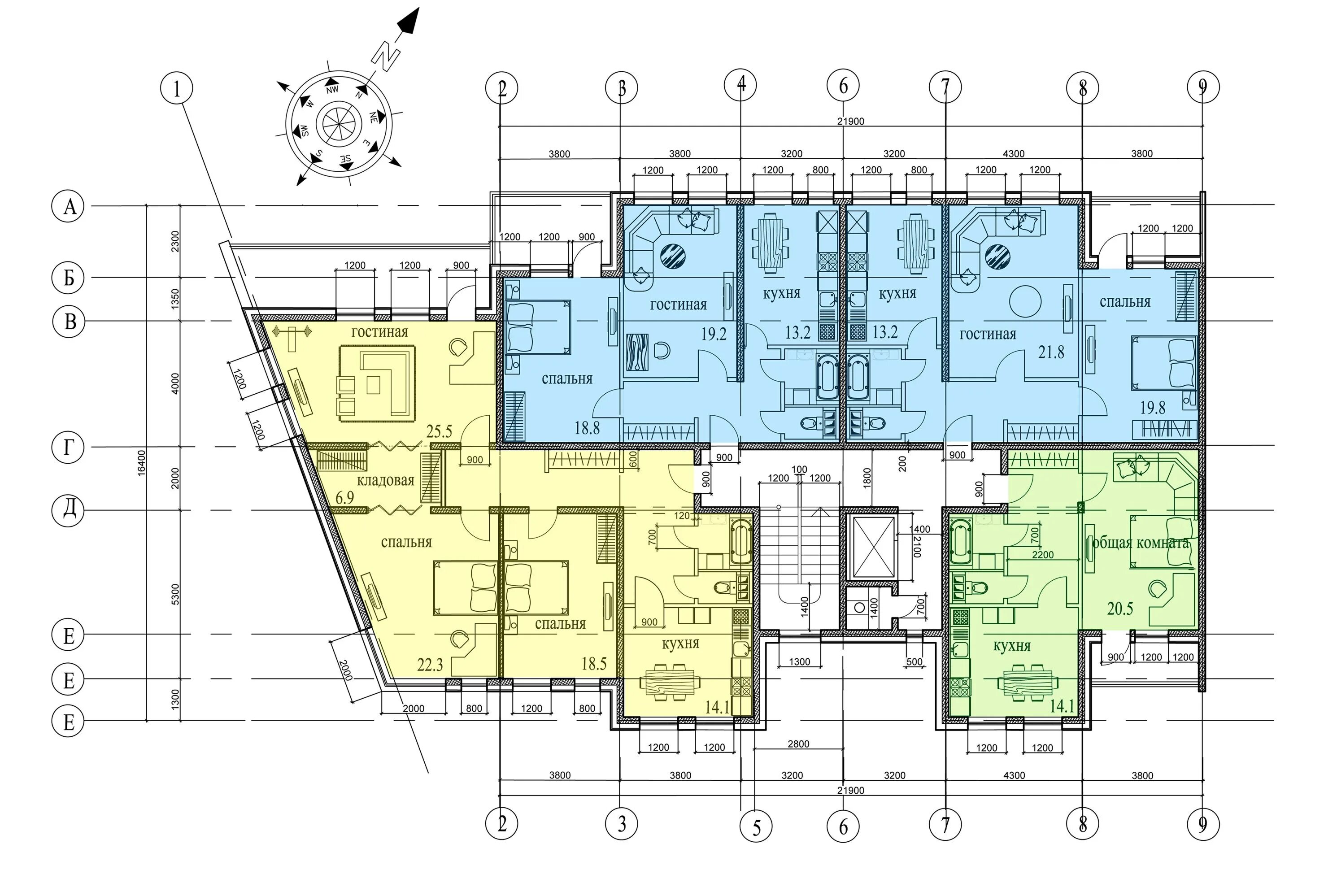
Секций домашний