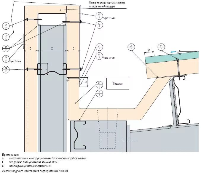
Сэндвич панель двг