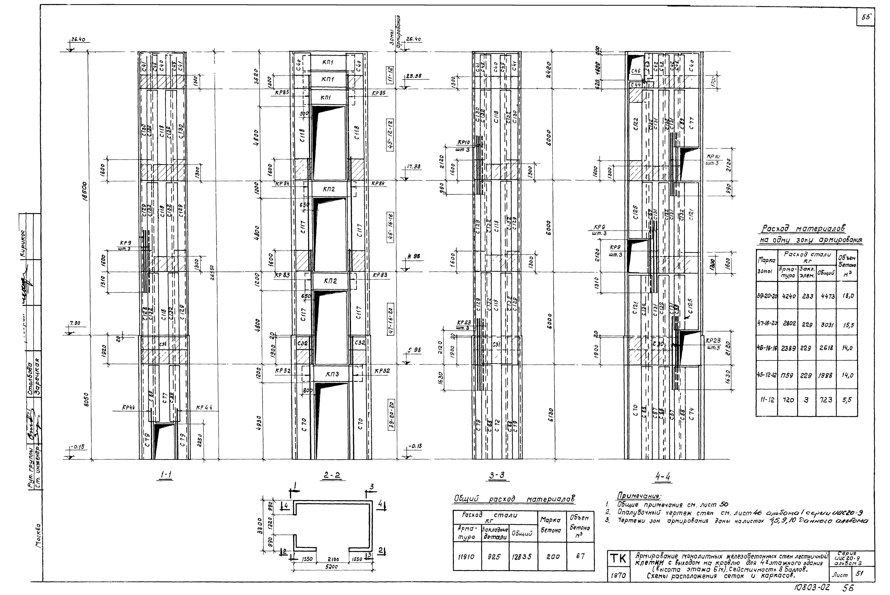
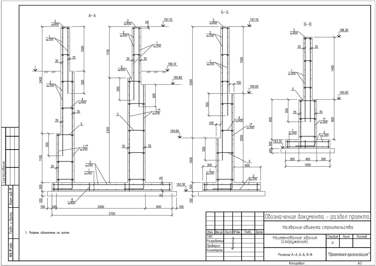
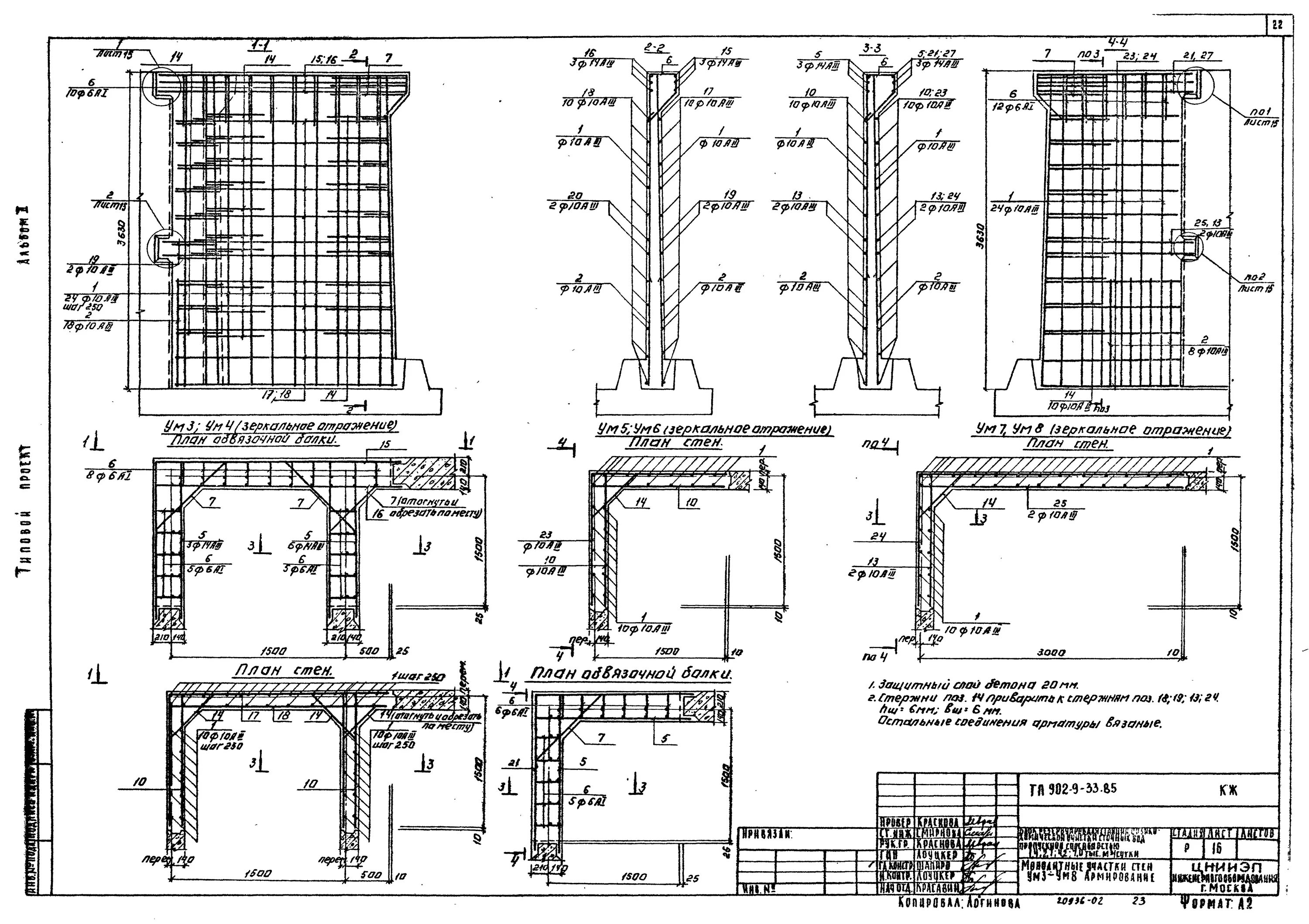
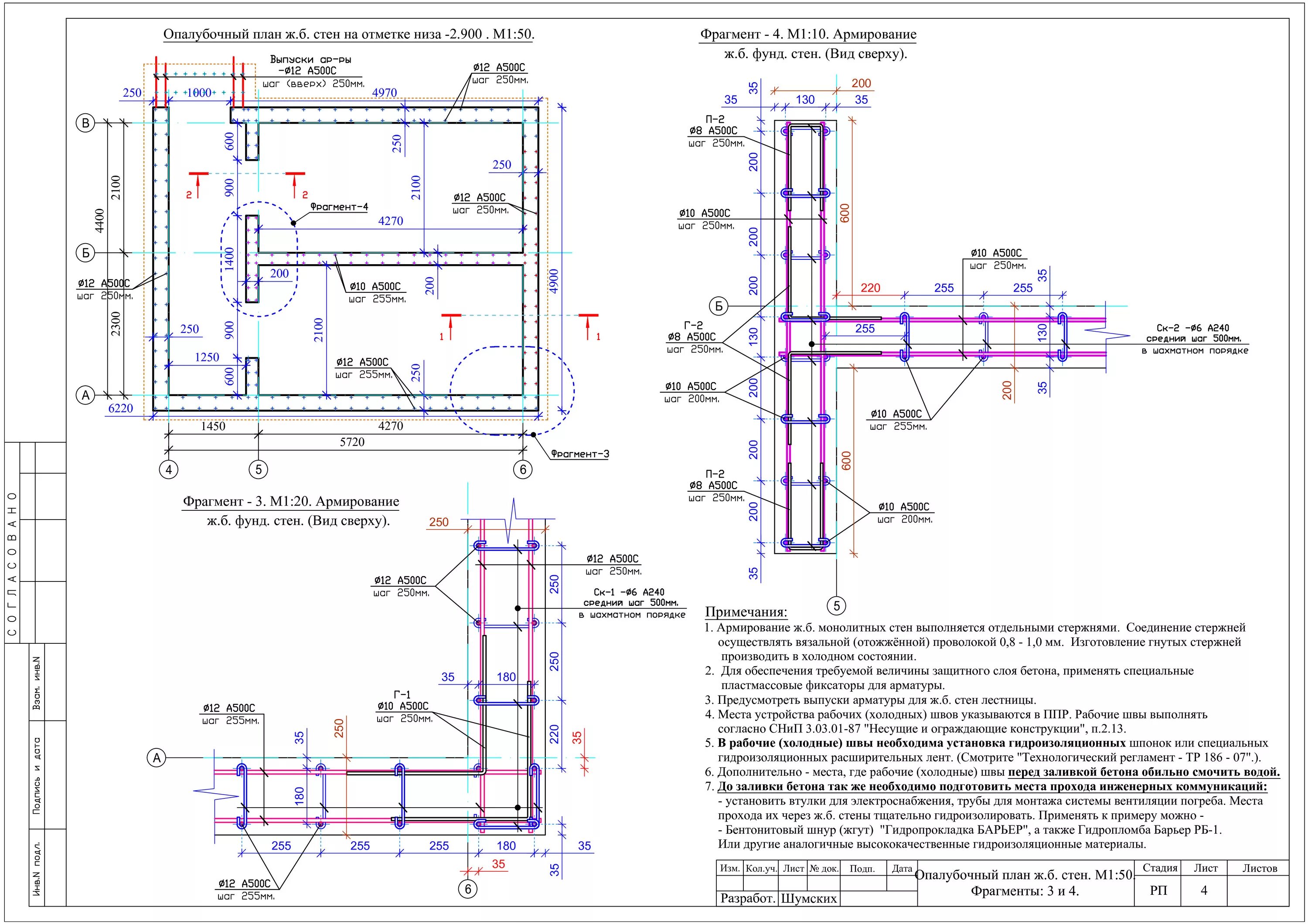
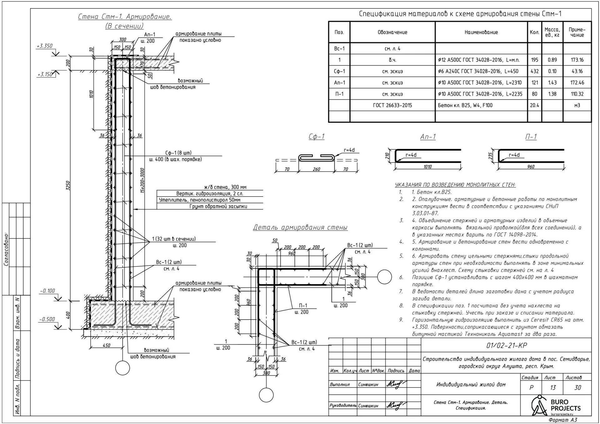
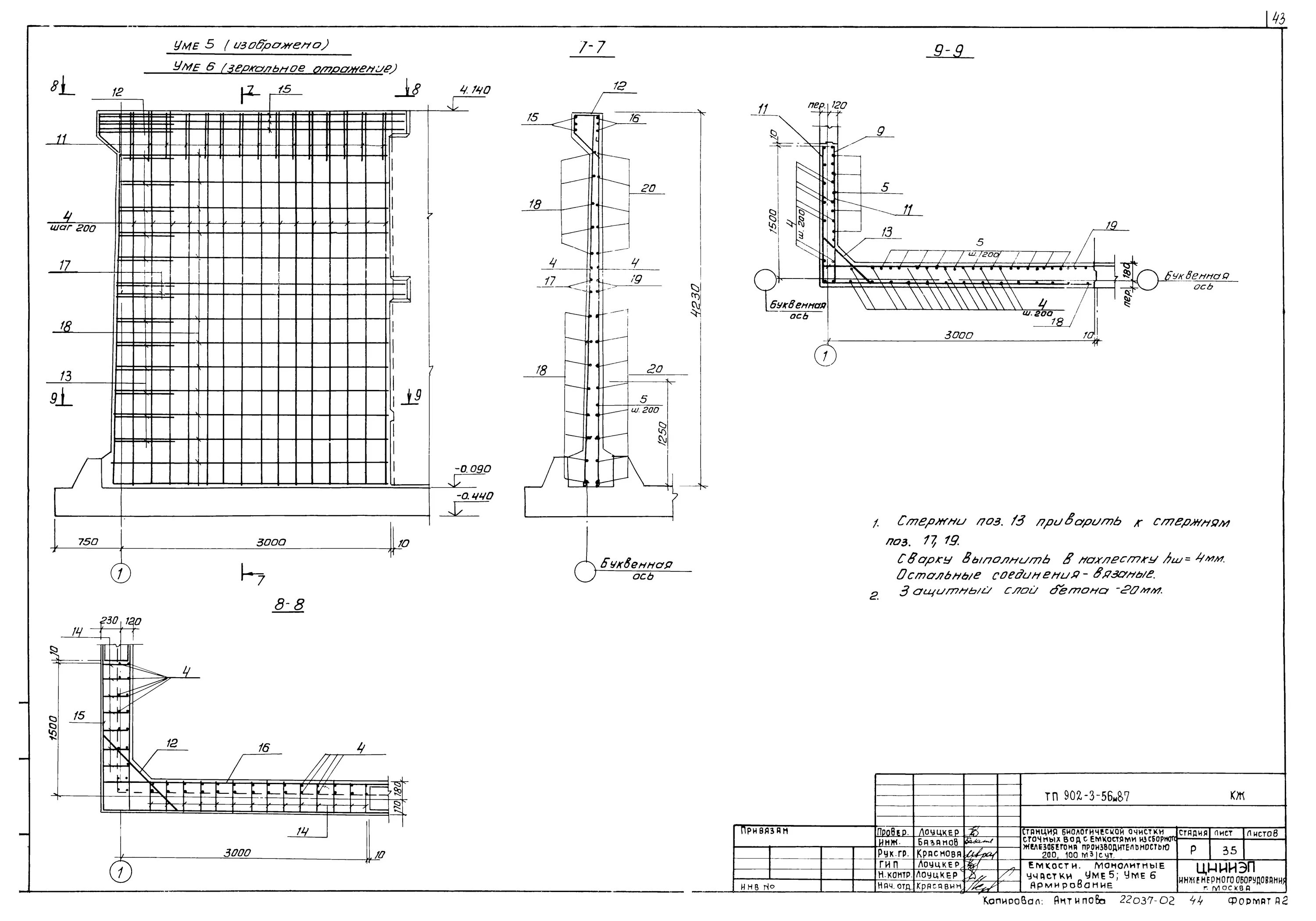
Схема армирования стен