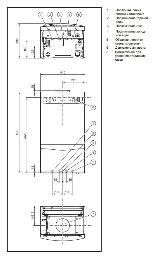
Схема котлов вайлант