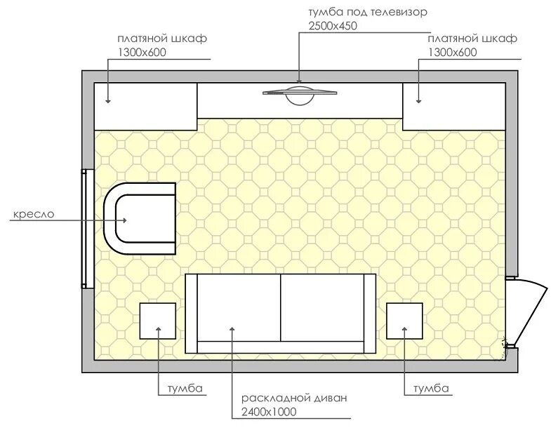
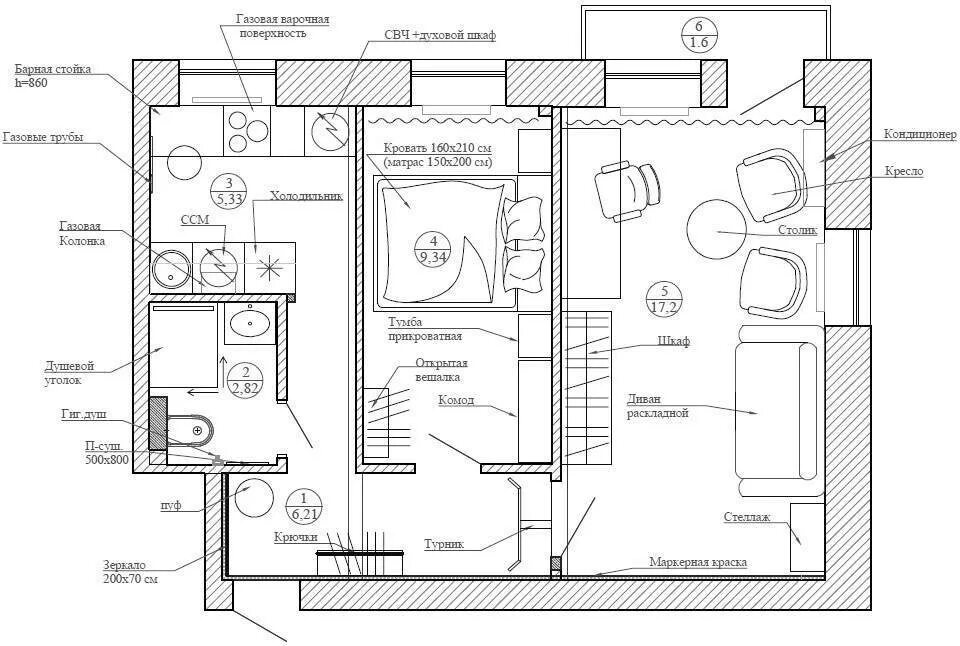
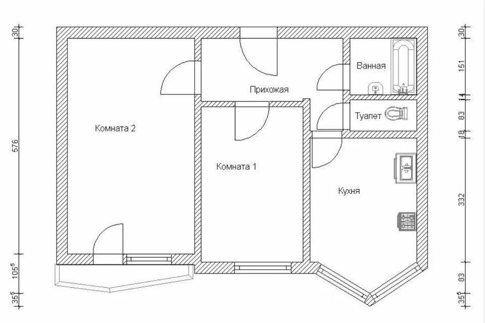
Схема метров 2 3