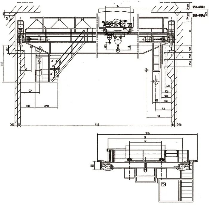
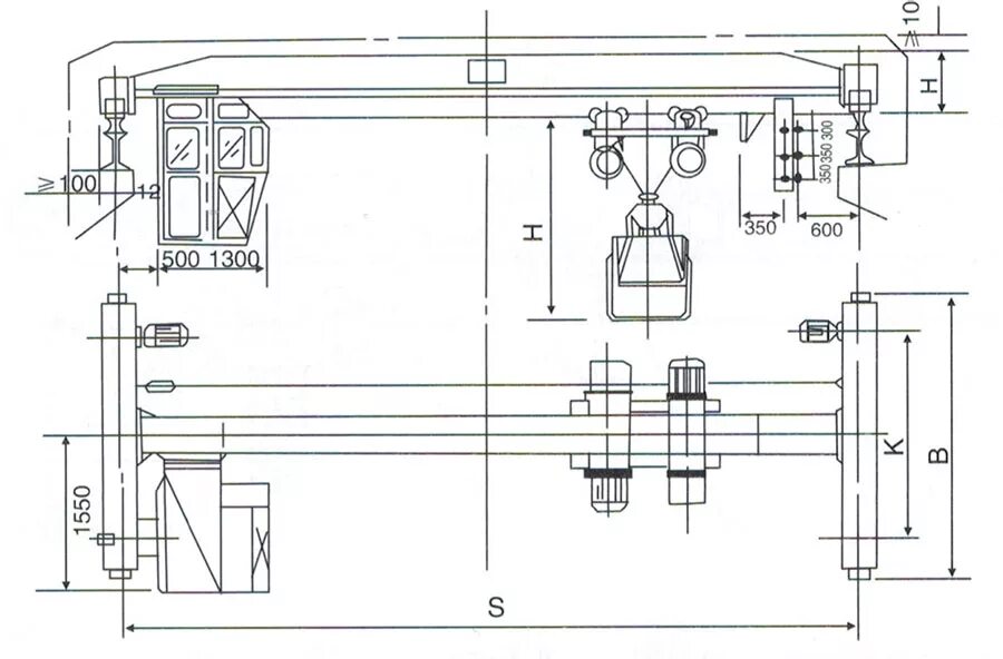
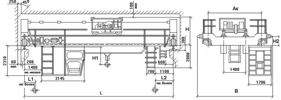
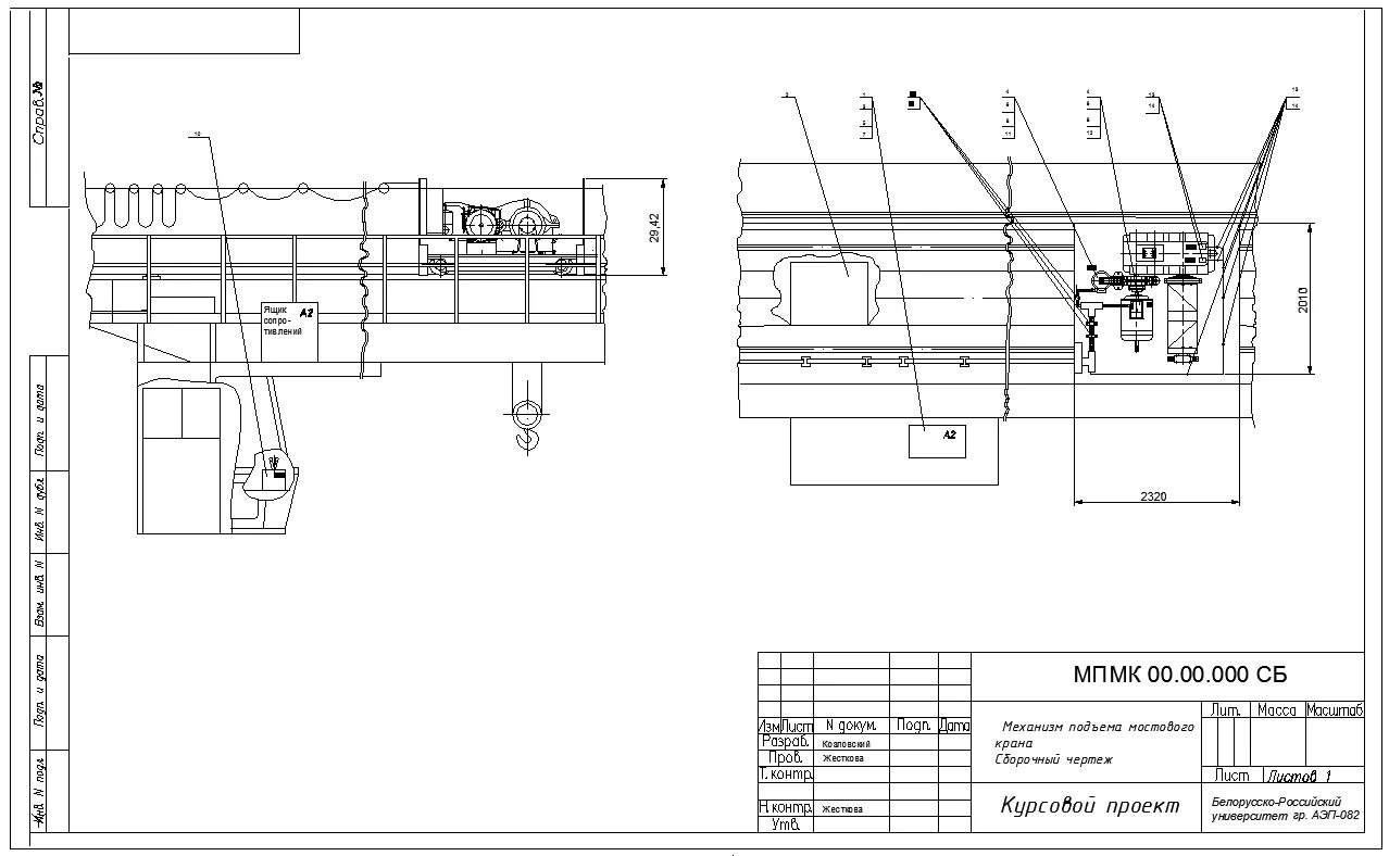
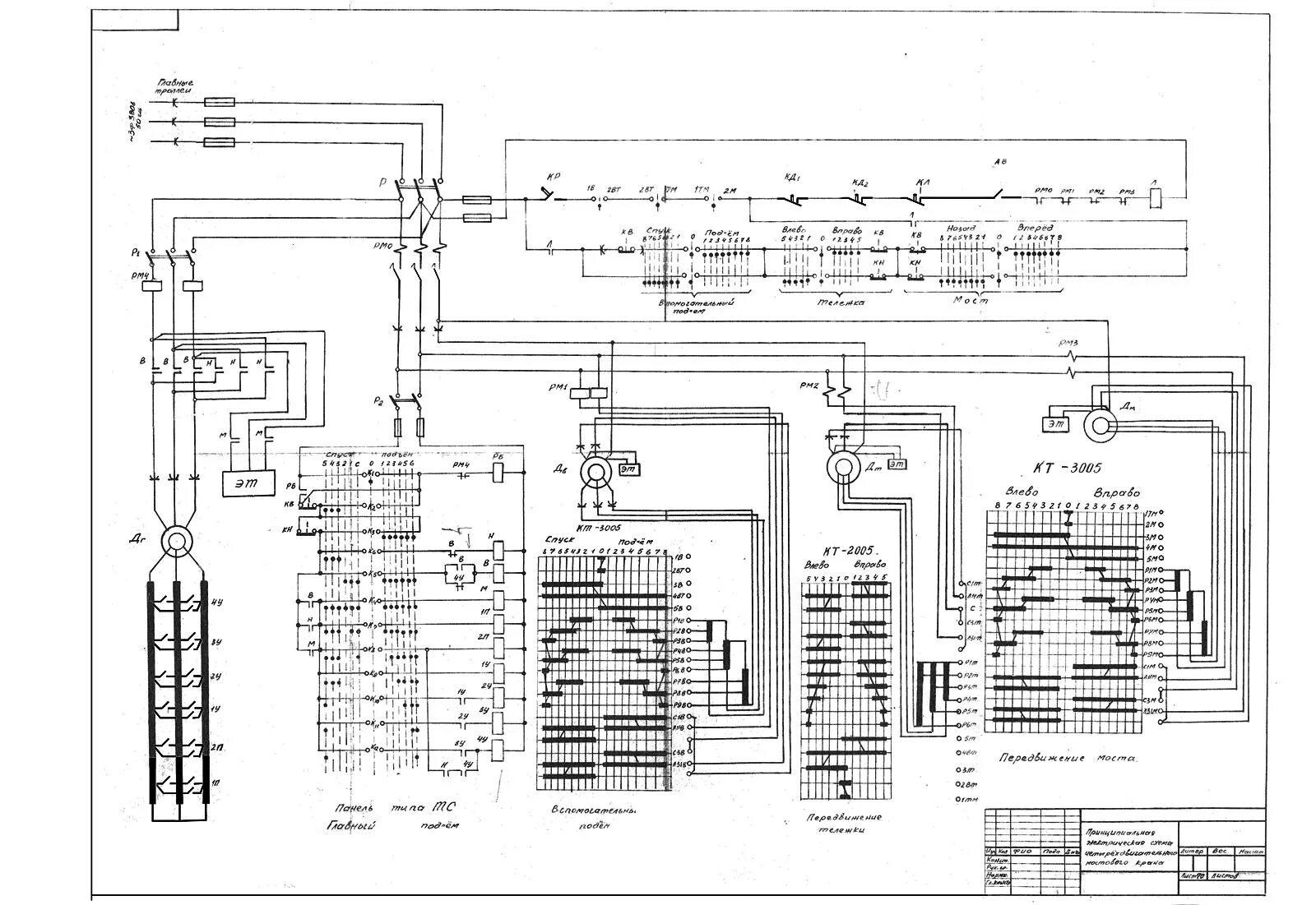
Схема мостового крана