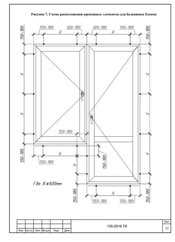
Схема окон пвх