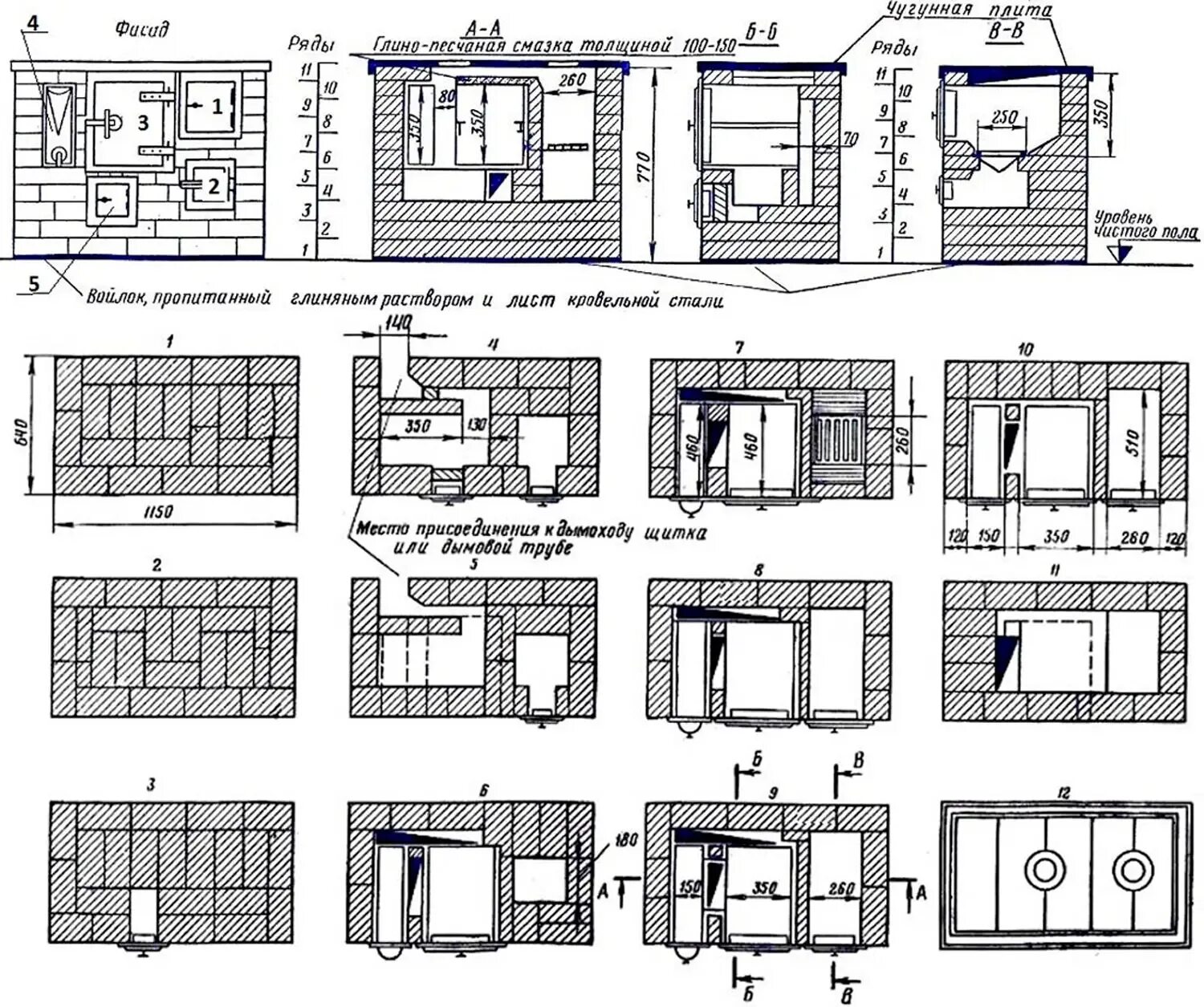
Схема печей из кирпича