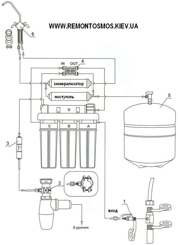
Схема подключения обратного осмоса гейзер