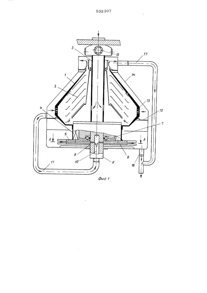
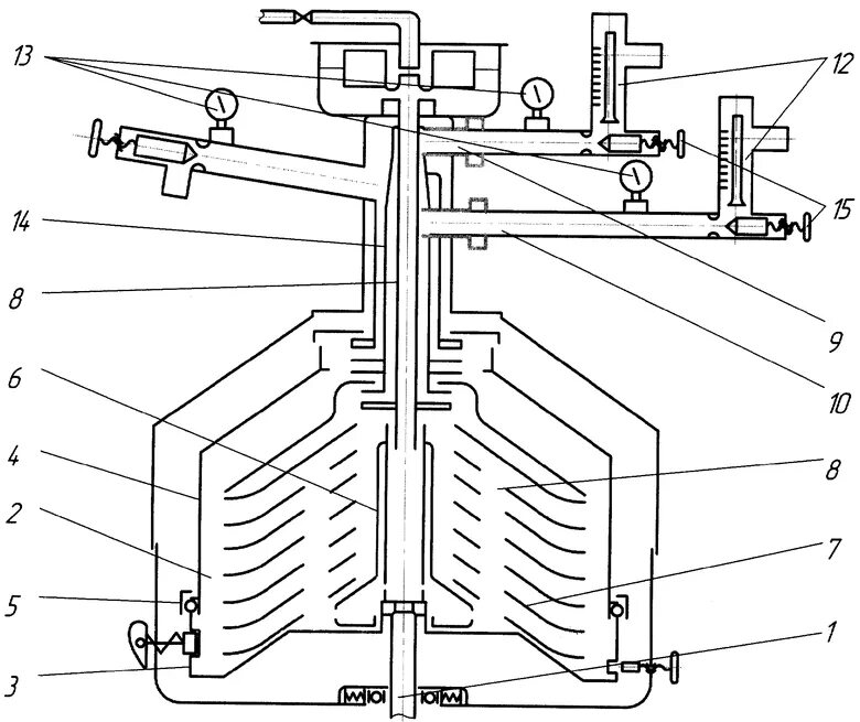
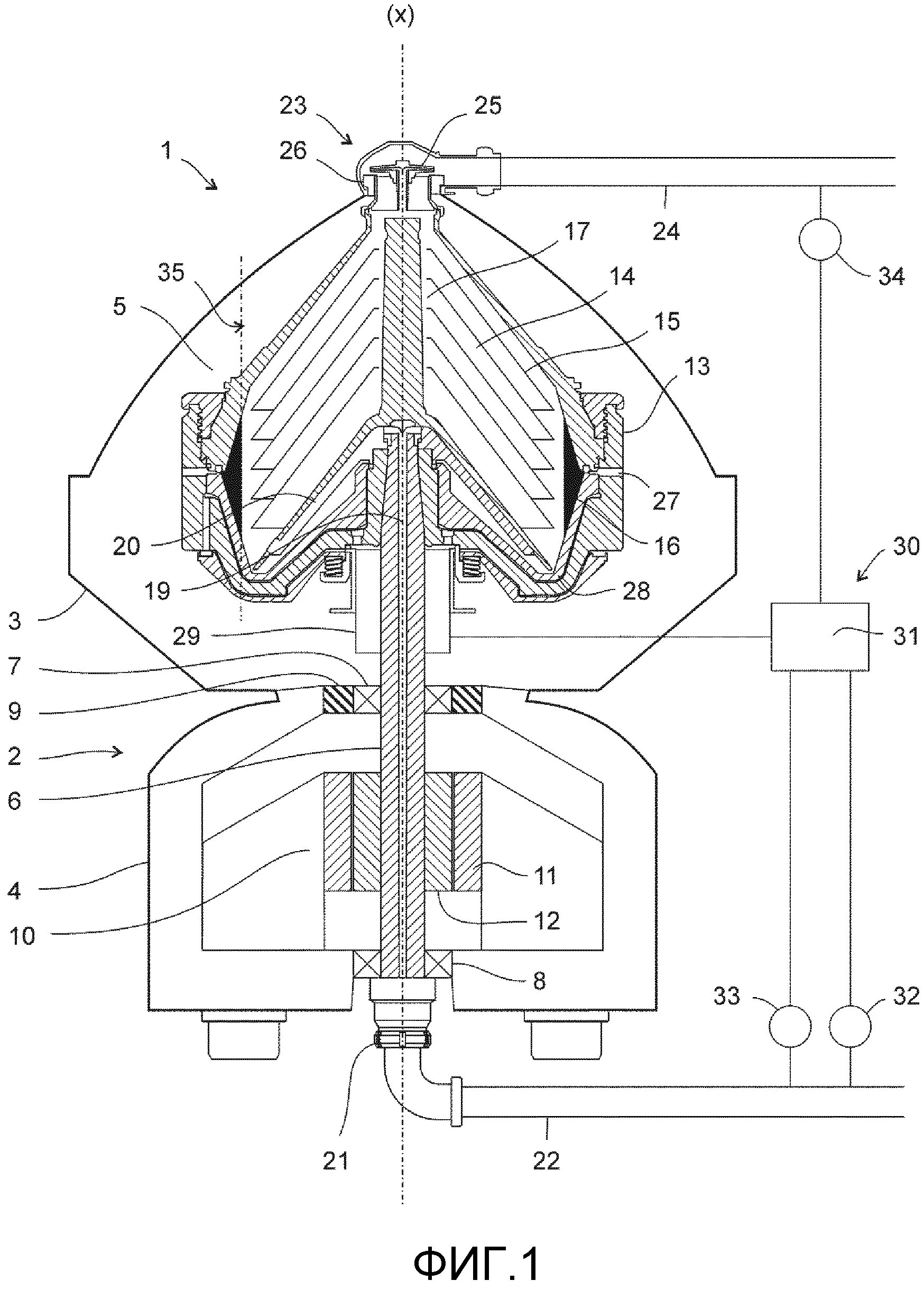
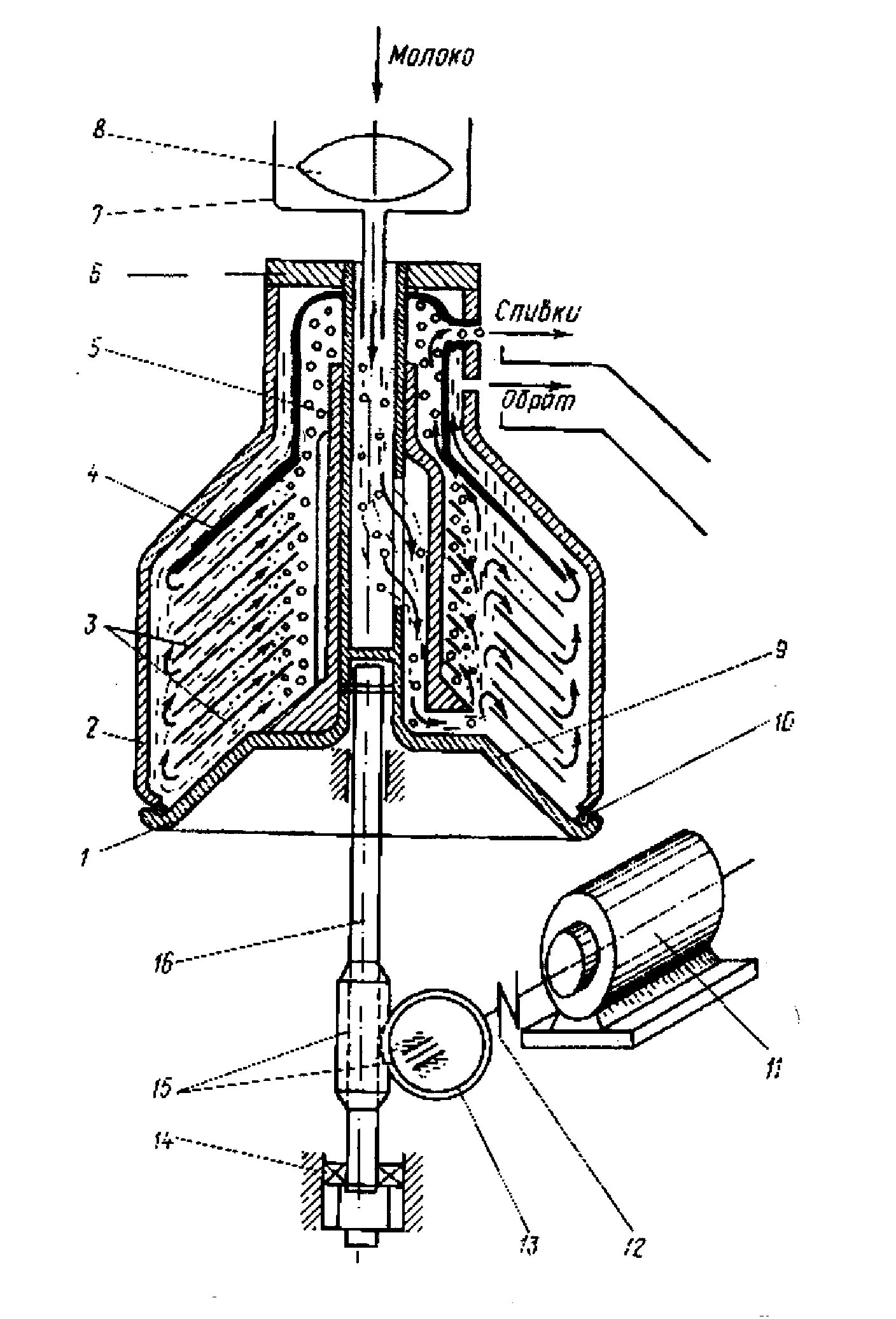
Схема работы сепаратора