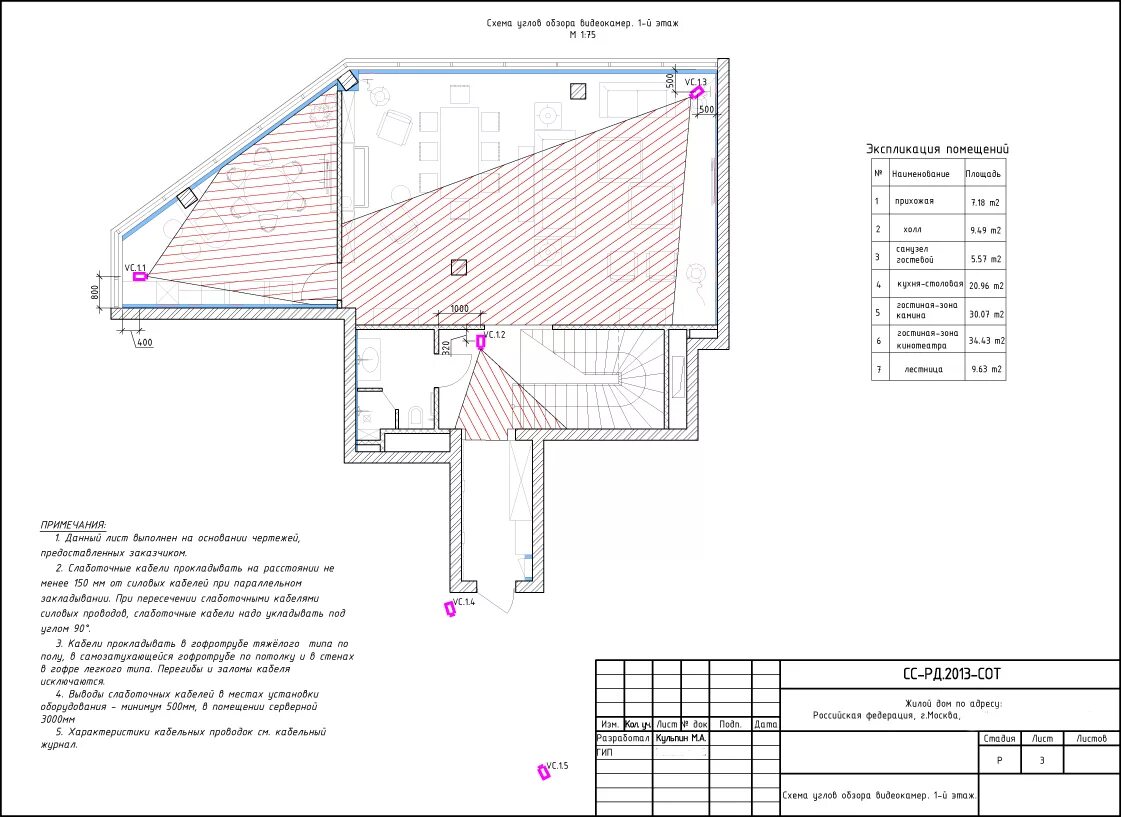
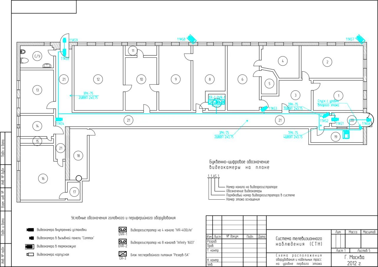
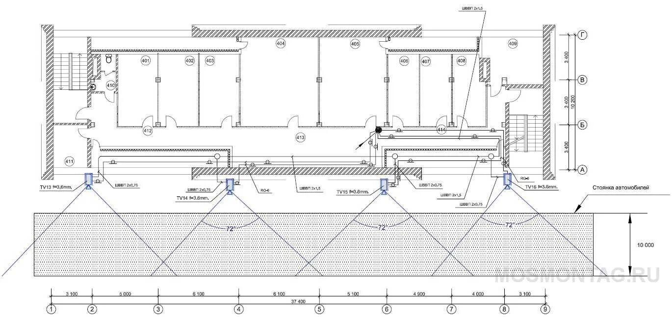
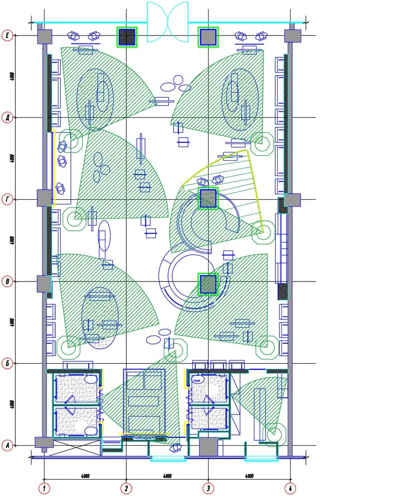
Схема размещения камер