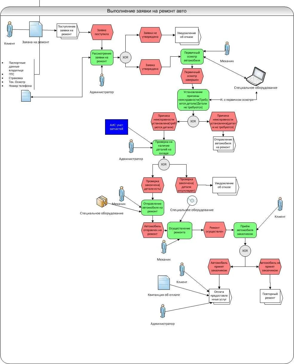
Схема сервисного центра