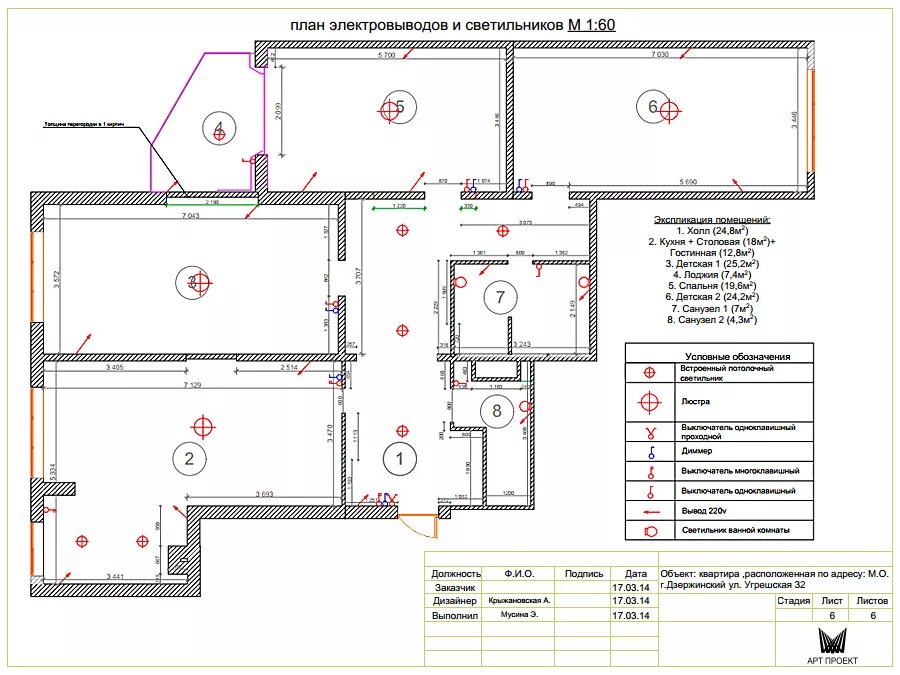
Схема встроенных светильников