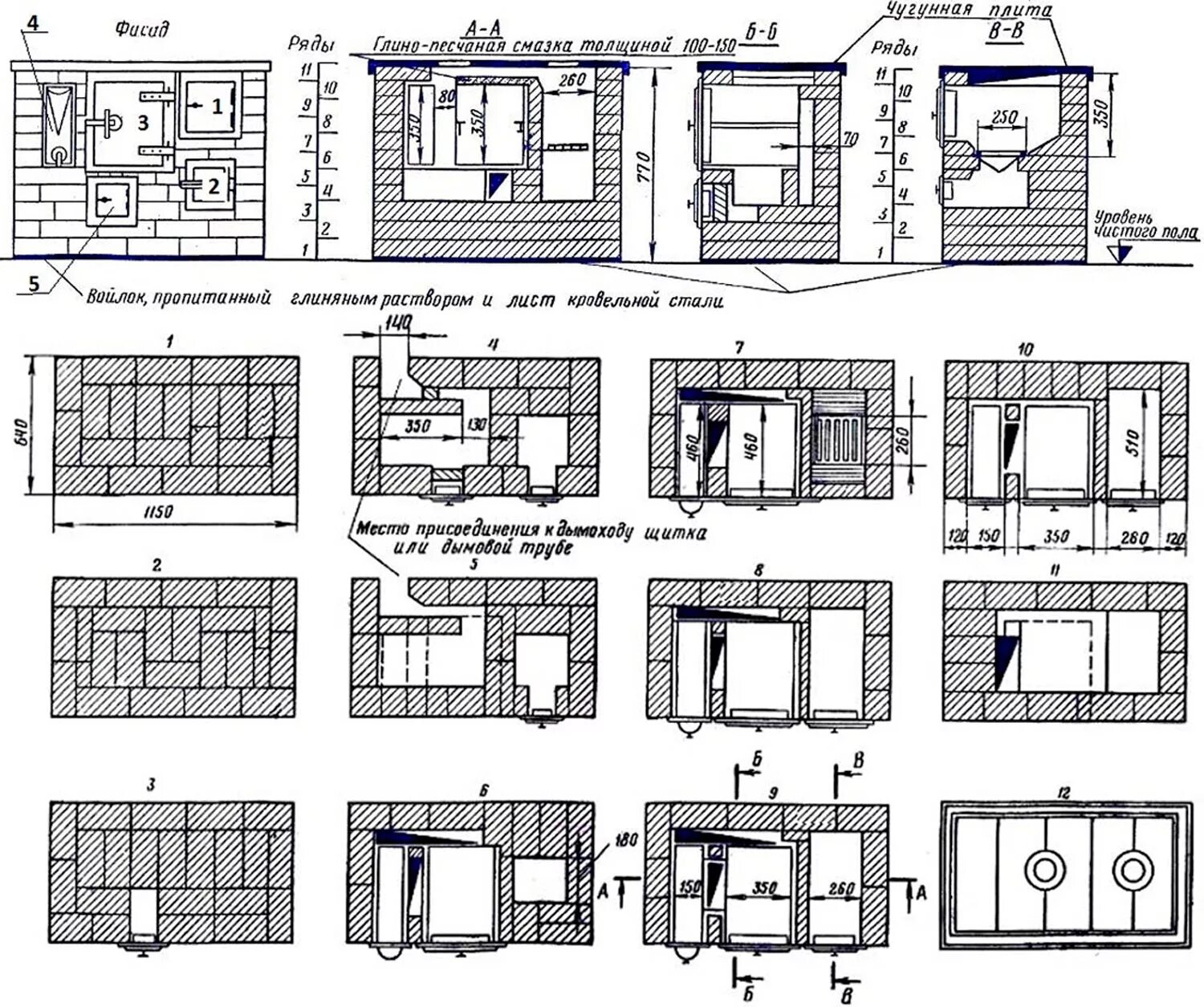
Схемы кирпичных печей