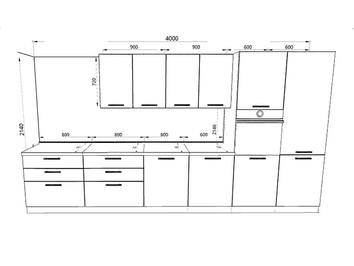
Схемы прямой кухни