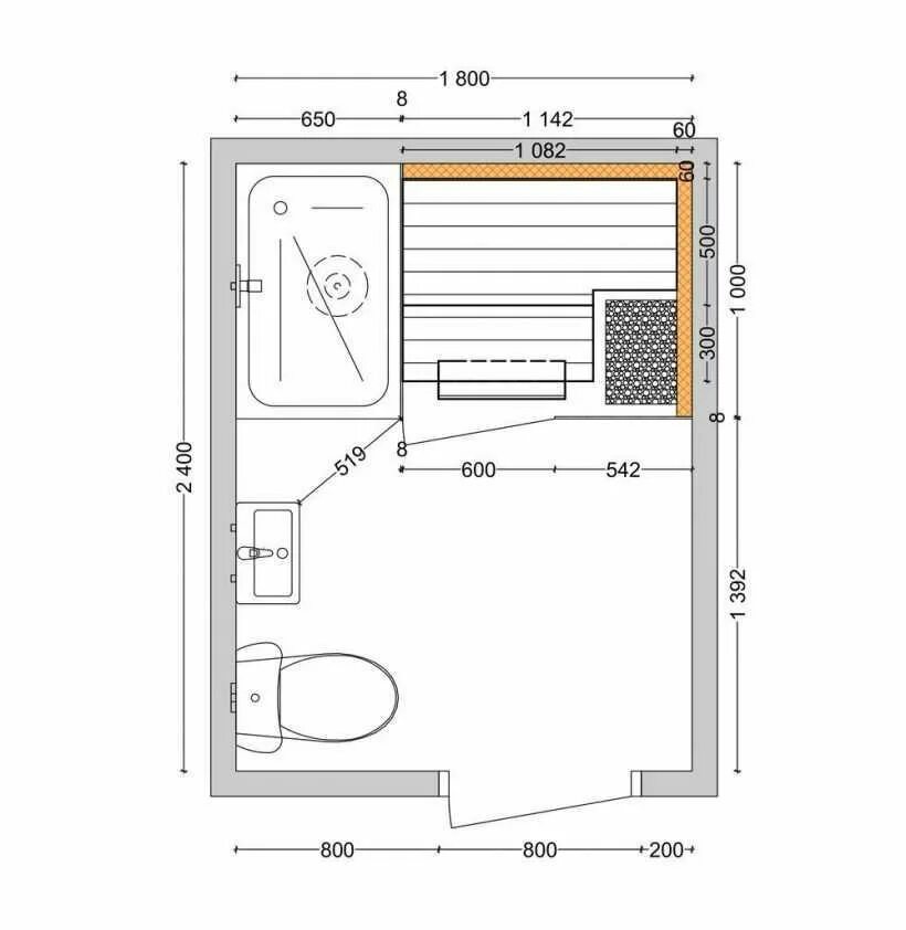
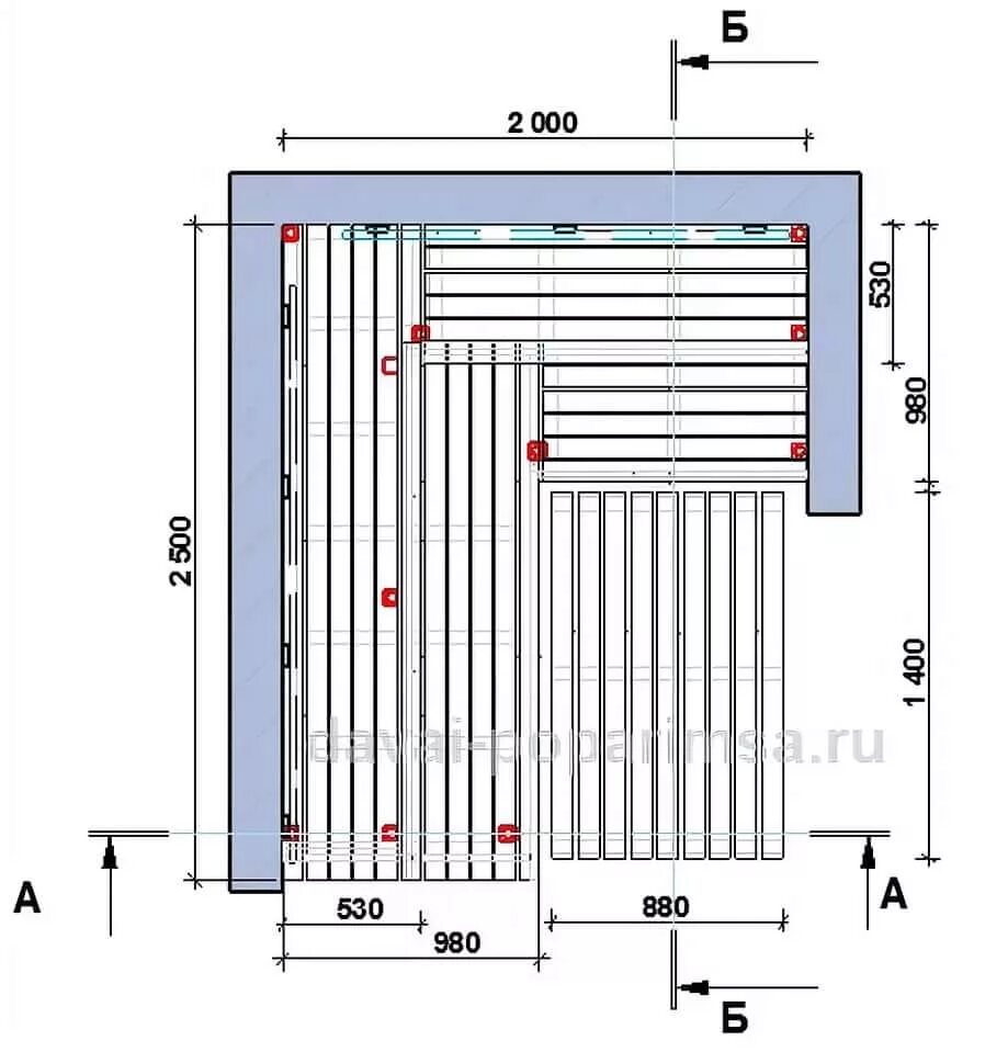
Ширина парной