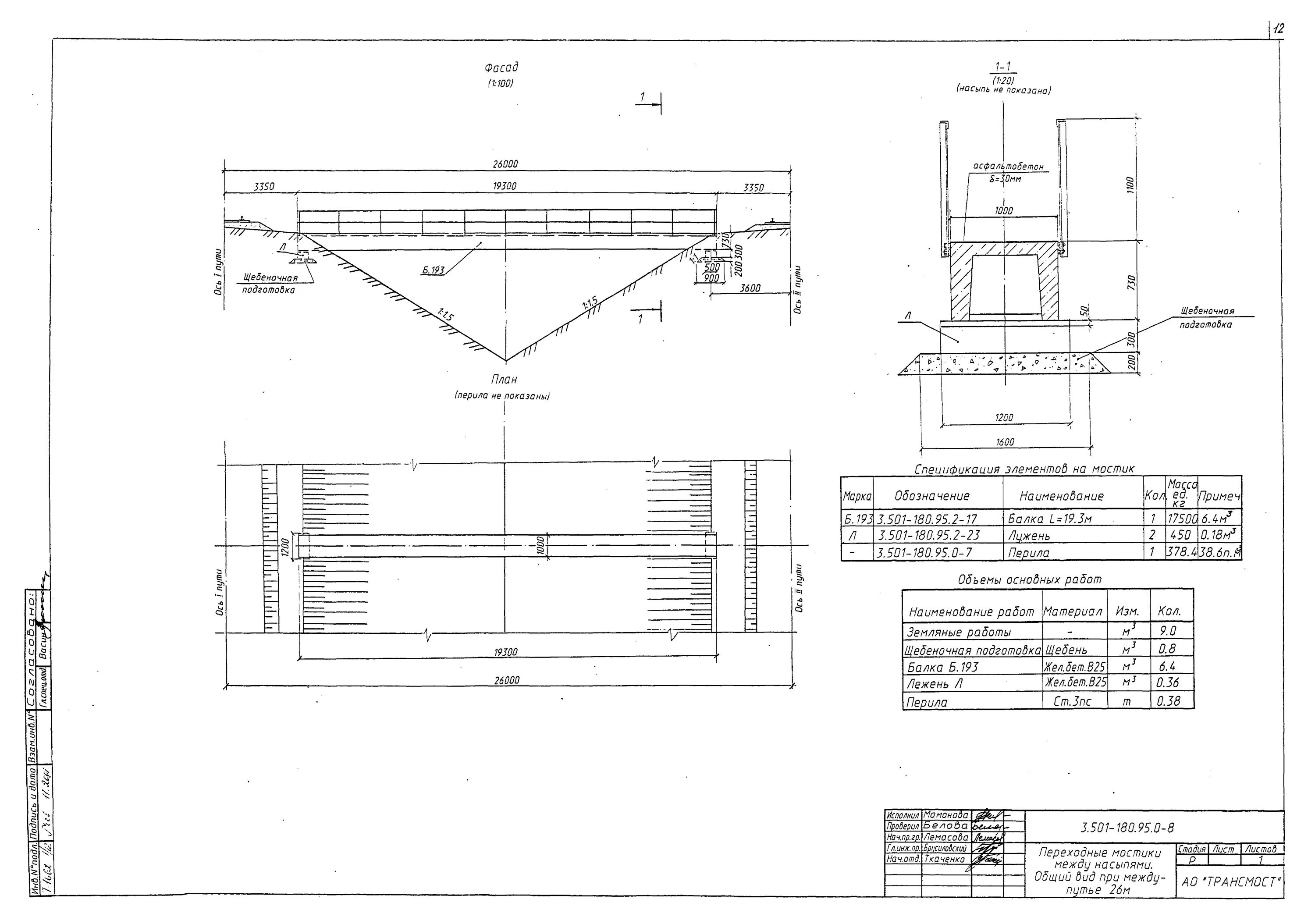
Ширина переходных мостиков через траншеи