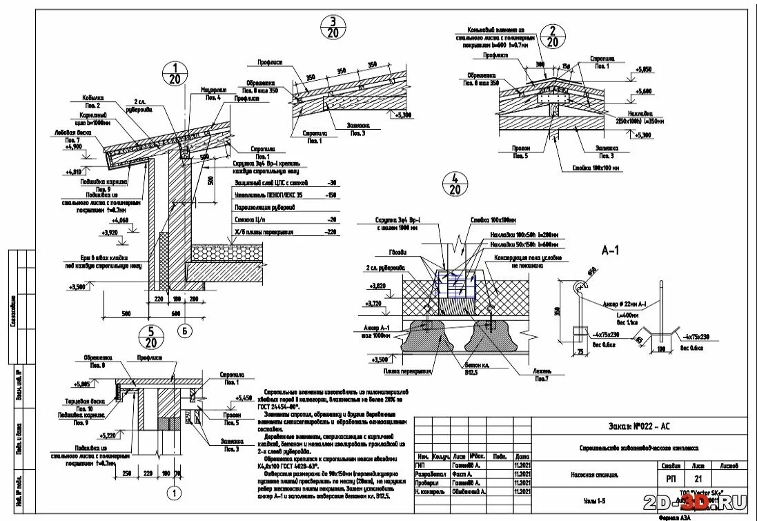
Широкопояс 15 вариант