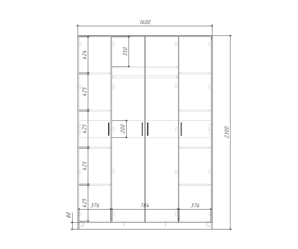
Шкаф эверест