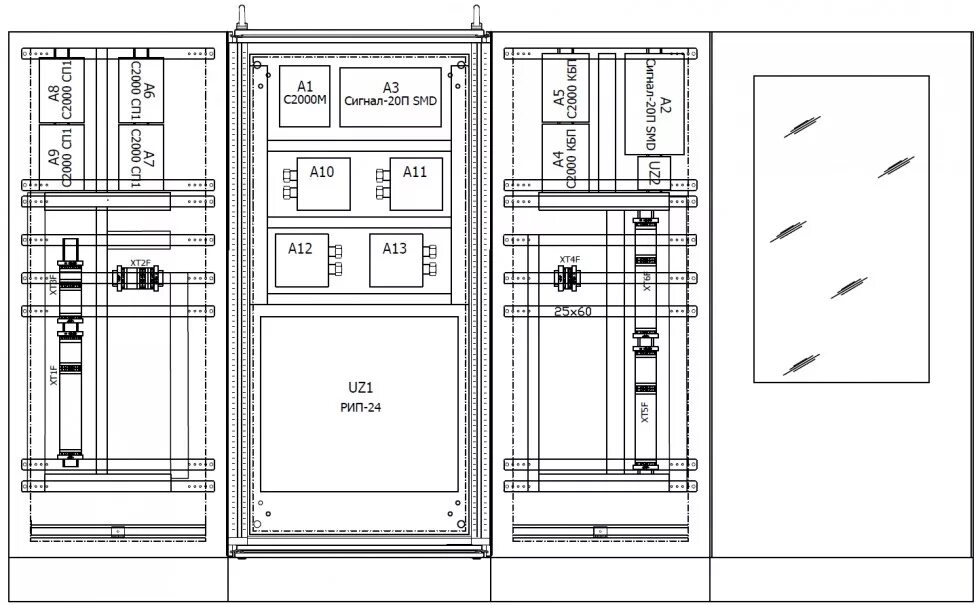
Шкаф шпс