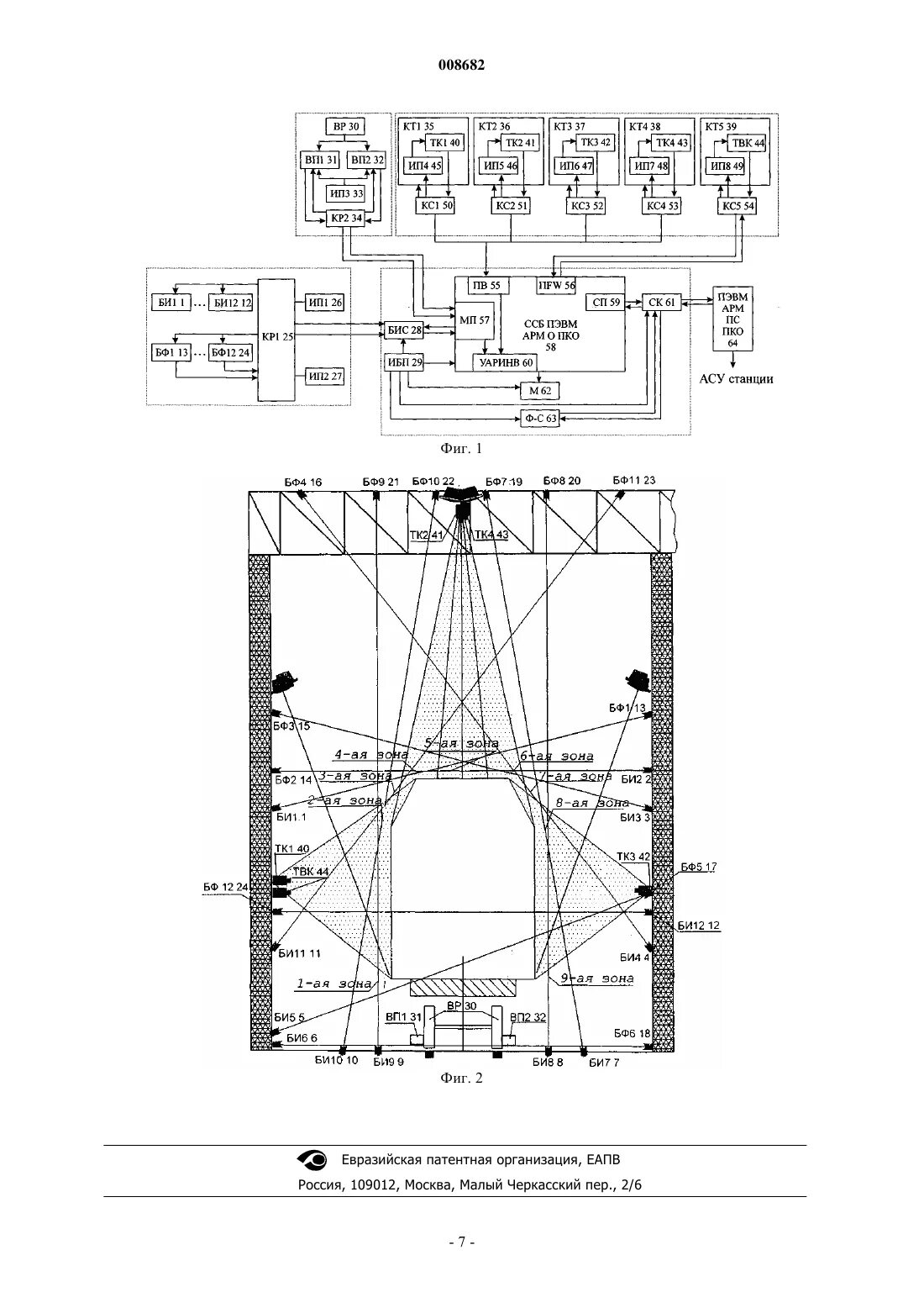
Система осмотра поездов