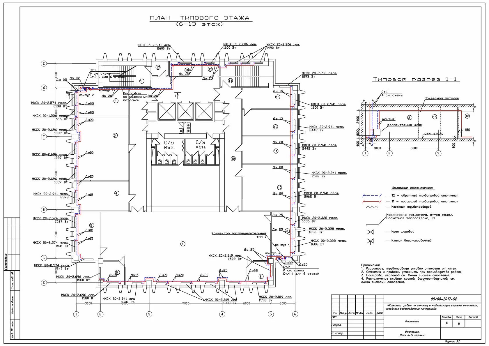
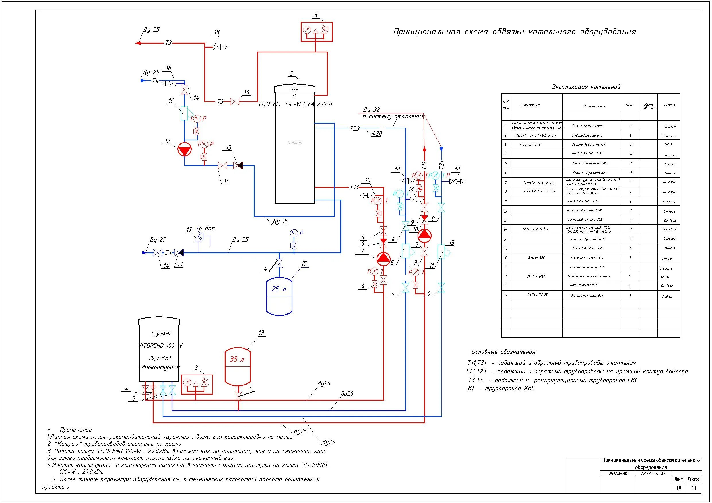
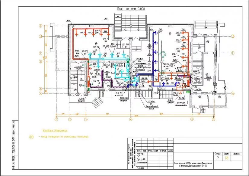
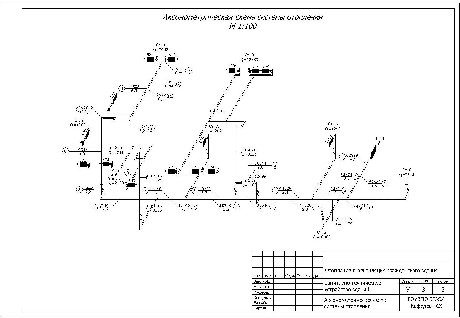
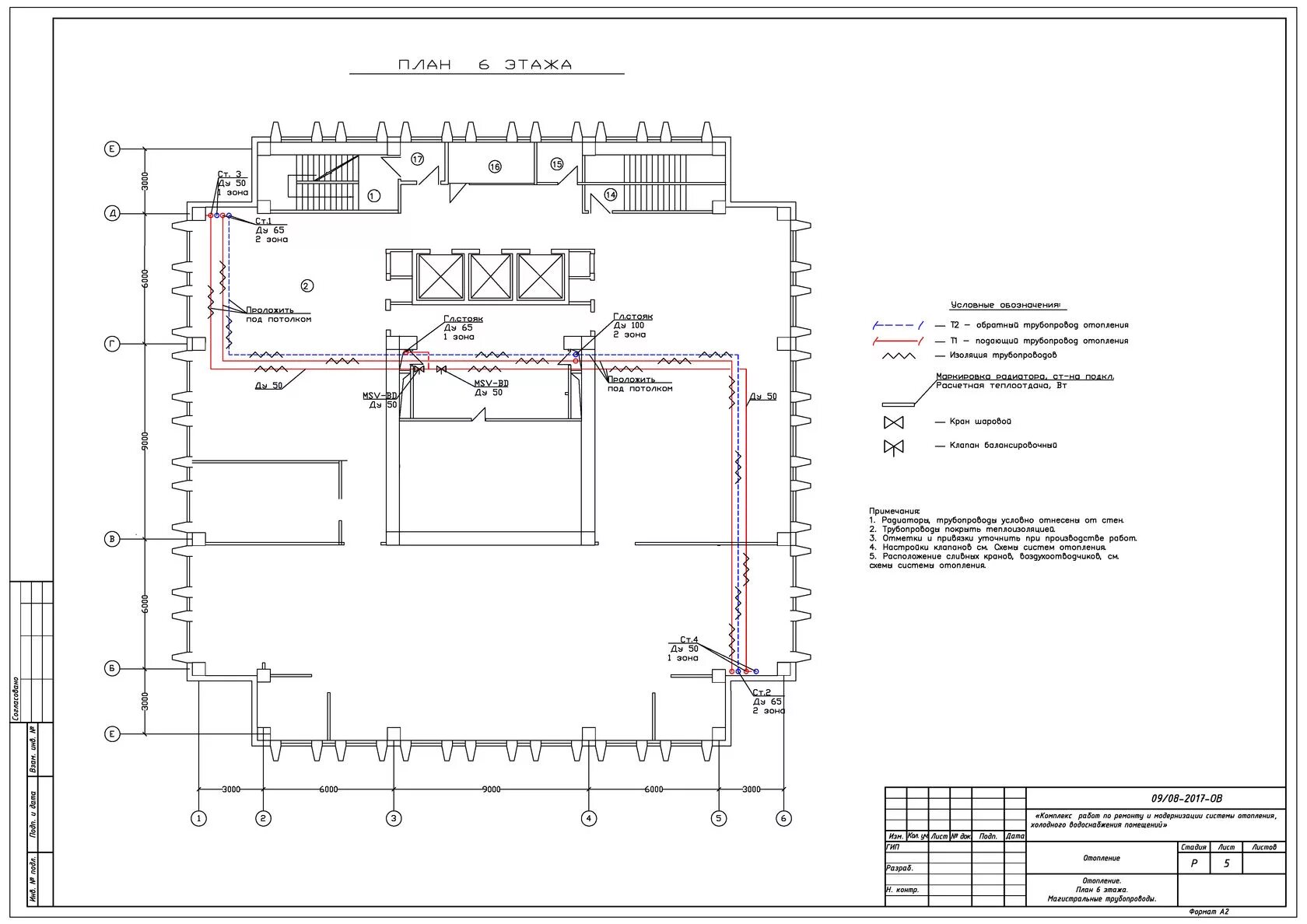
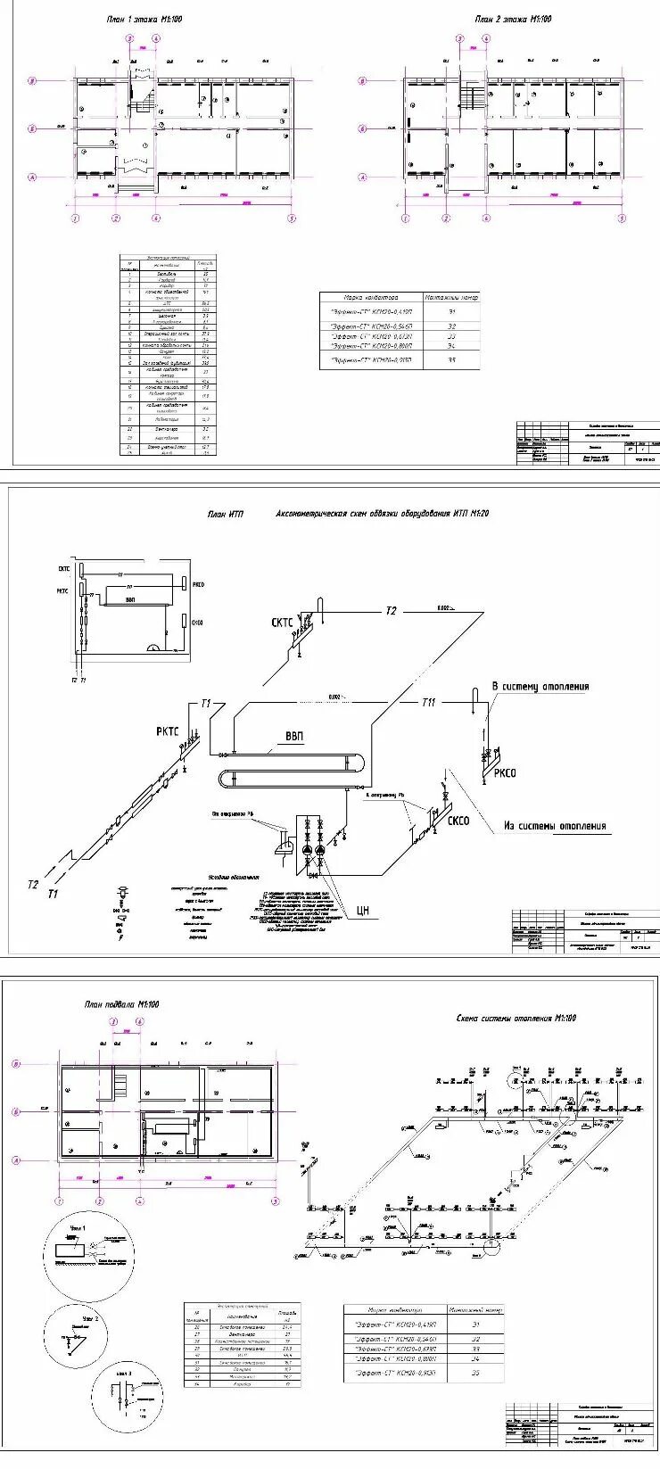
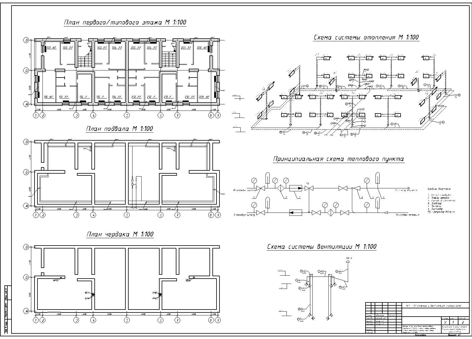
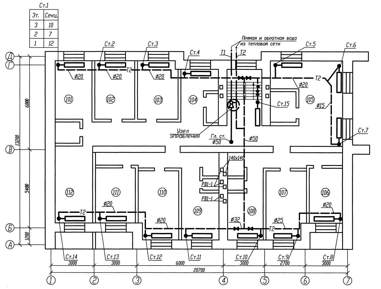
Система отопления административных зданий