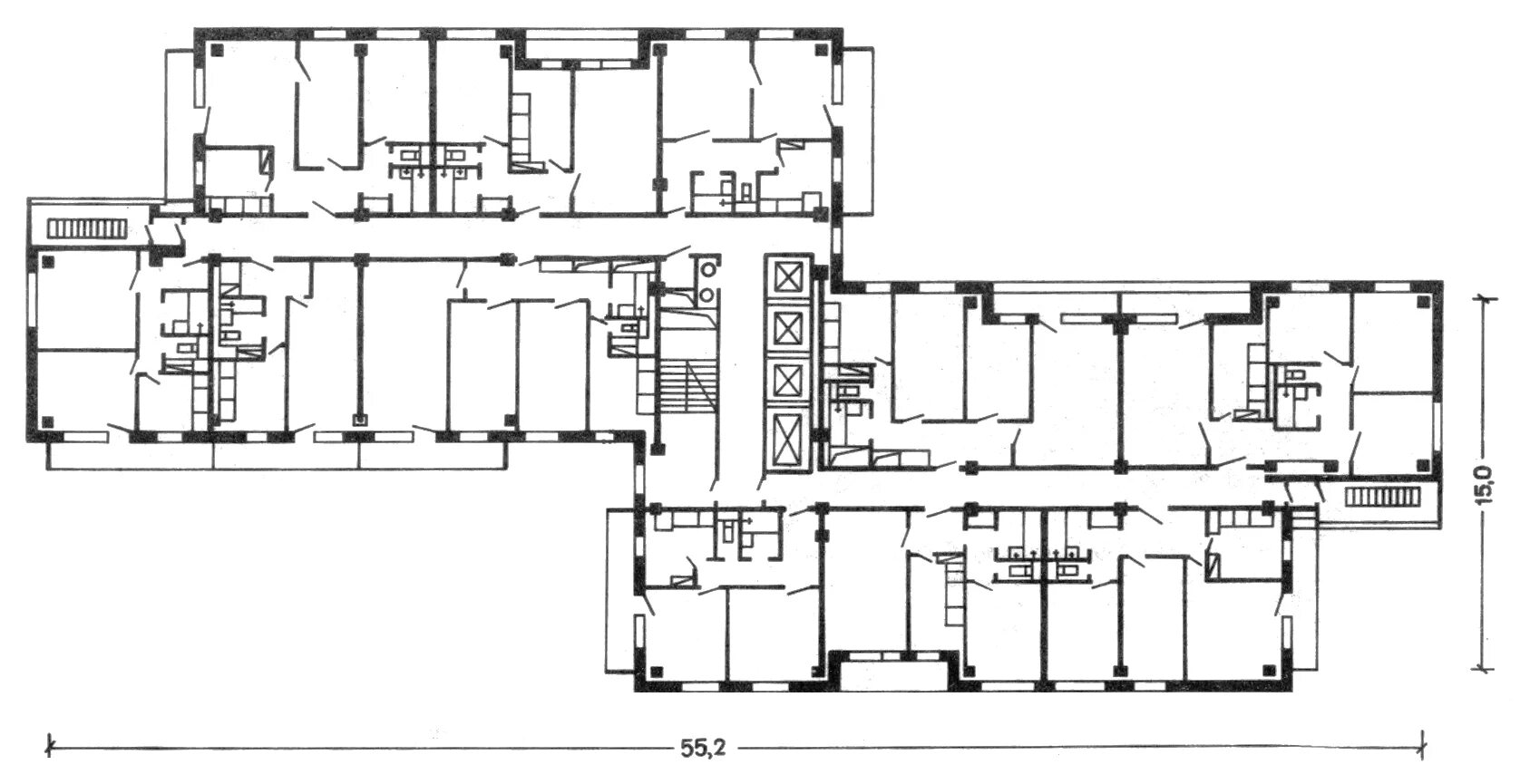
Смешанный тип дома