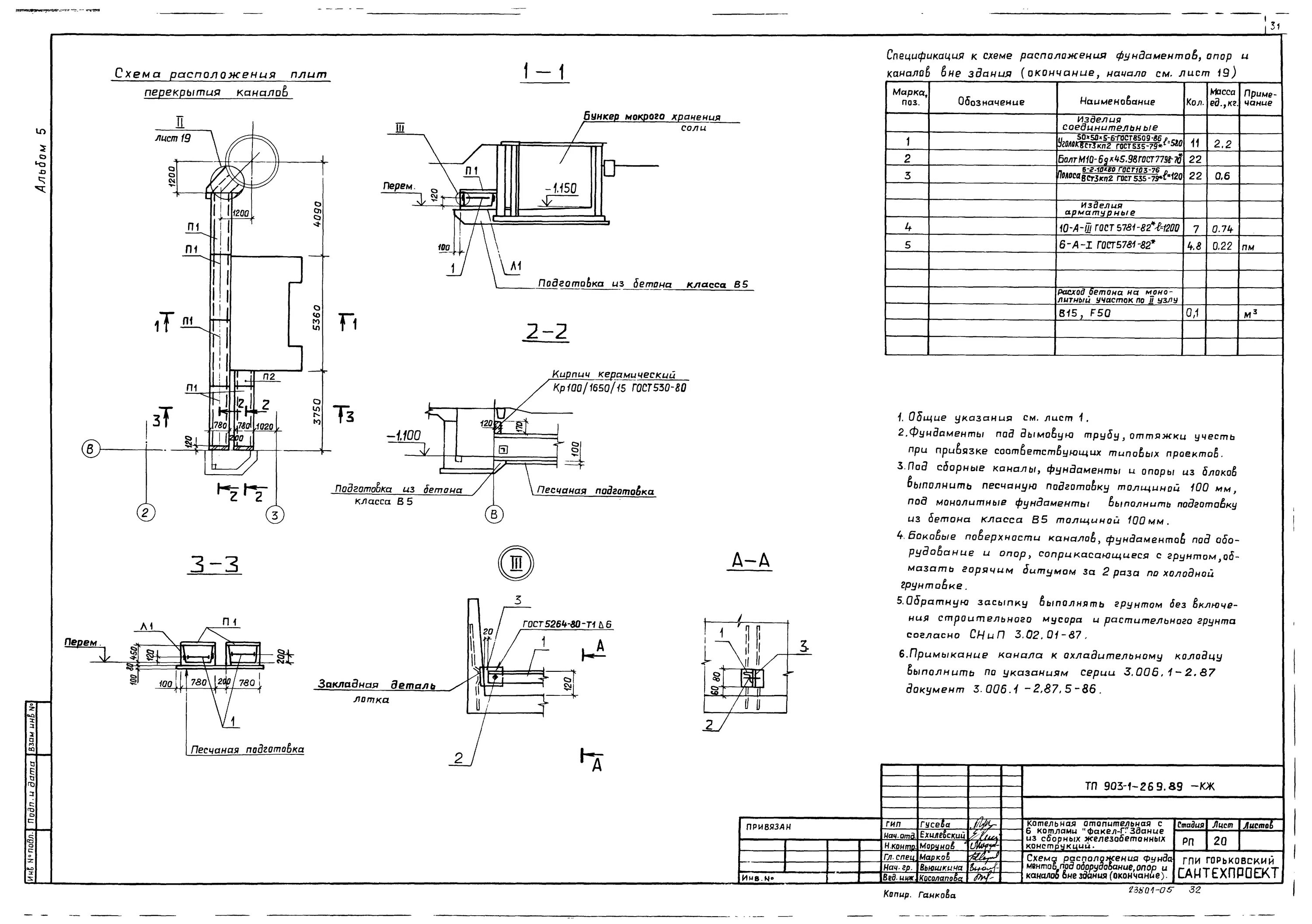
Снип 3 02