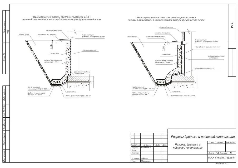
Снип дренаж