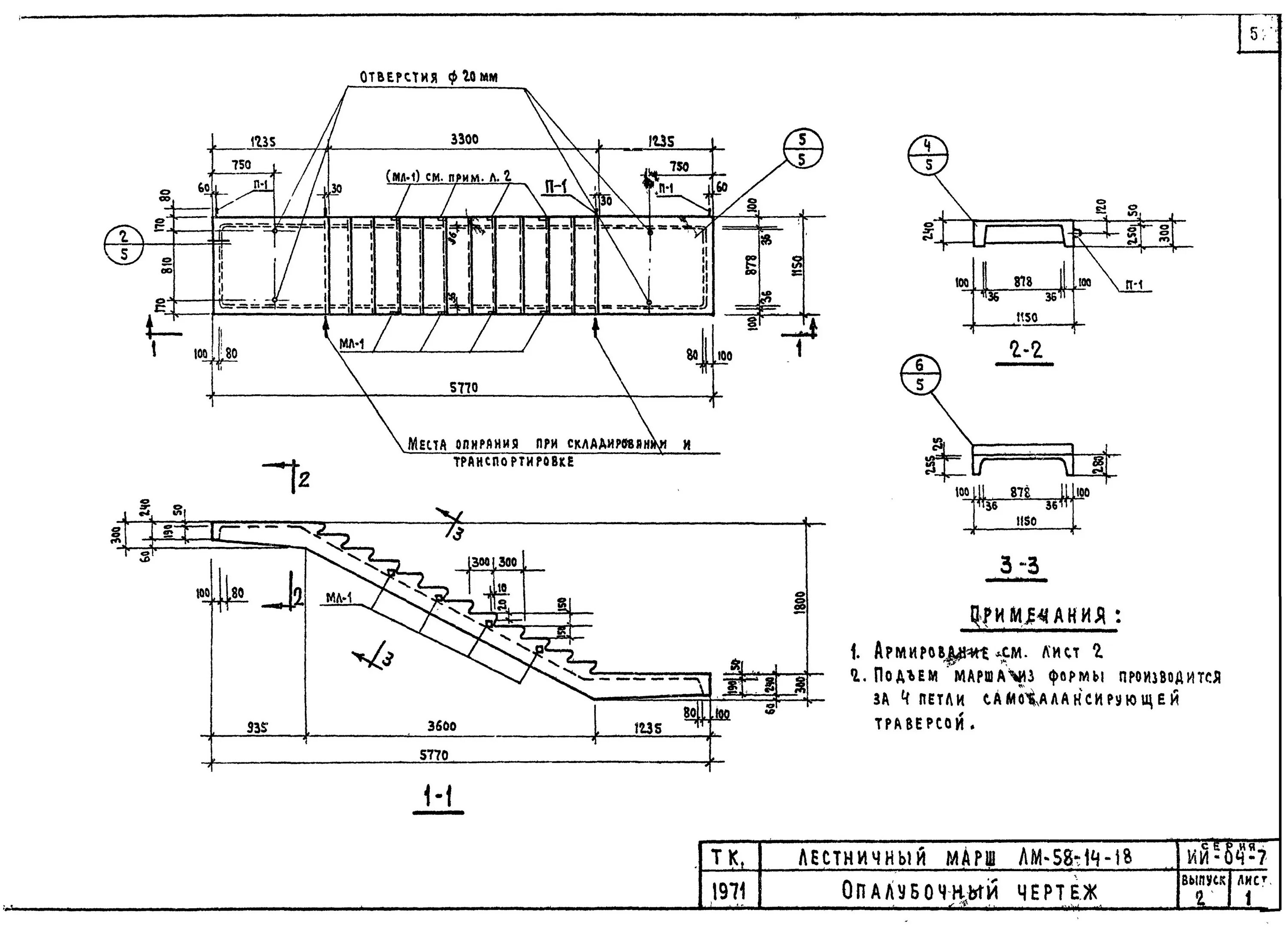
Снип лестничные марши