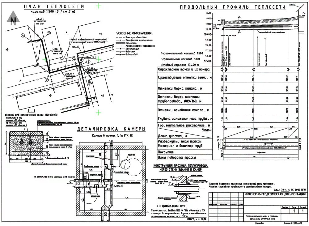
Снип теплотрассы