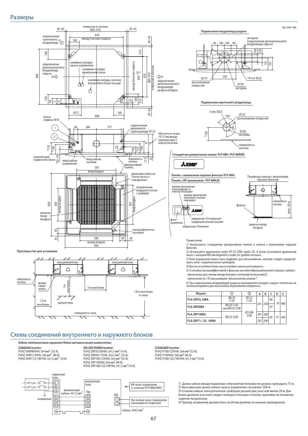
Соединение раздачей