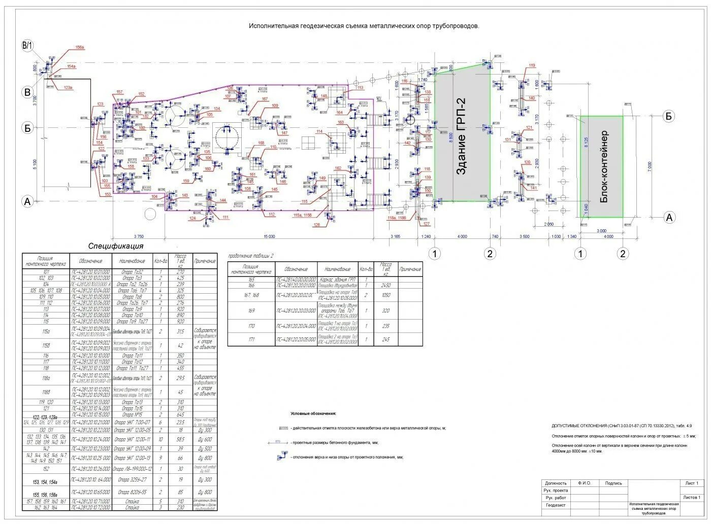
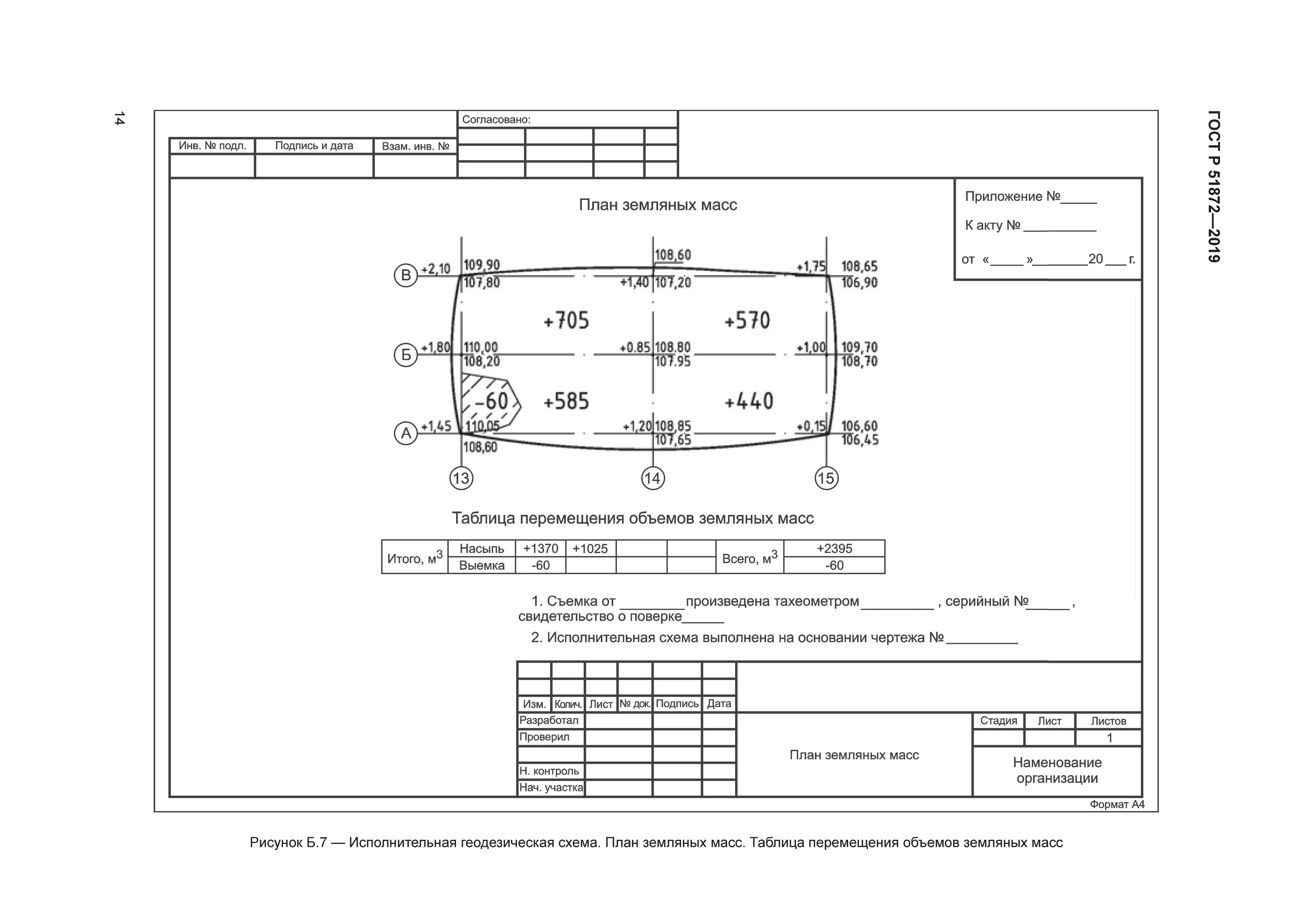
Согласно исполнительной документации