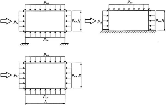
Сп 325.1325800 2017 здания и сооружения