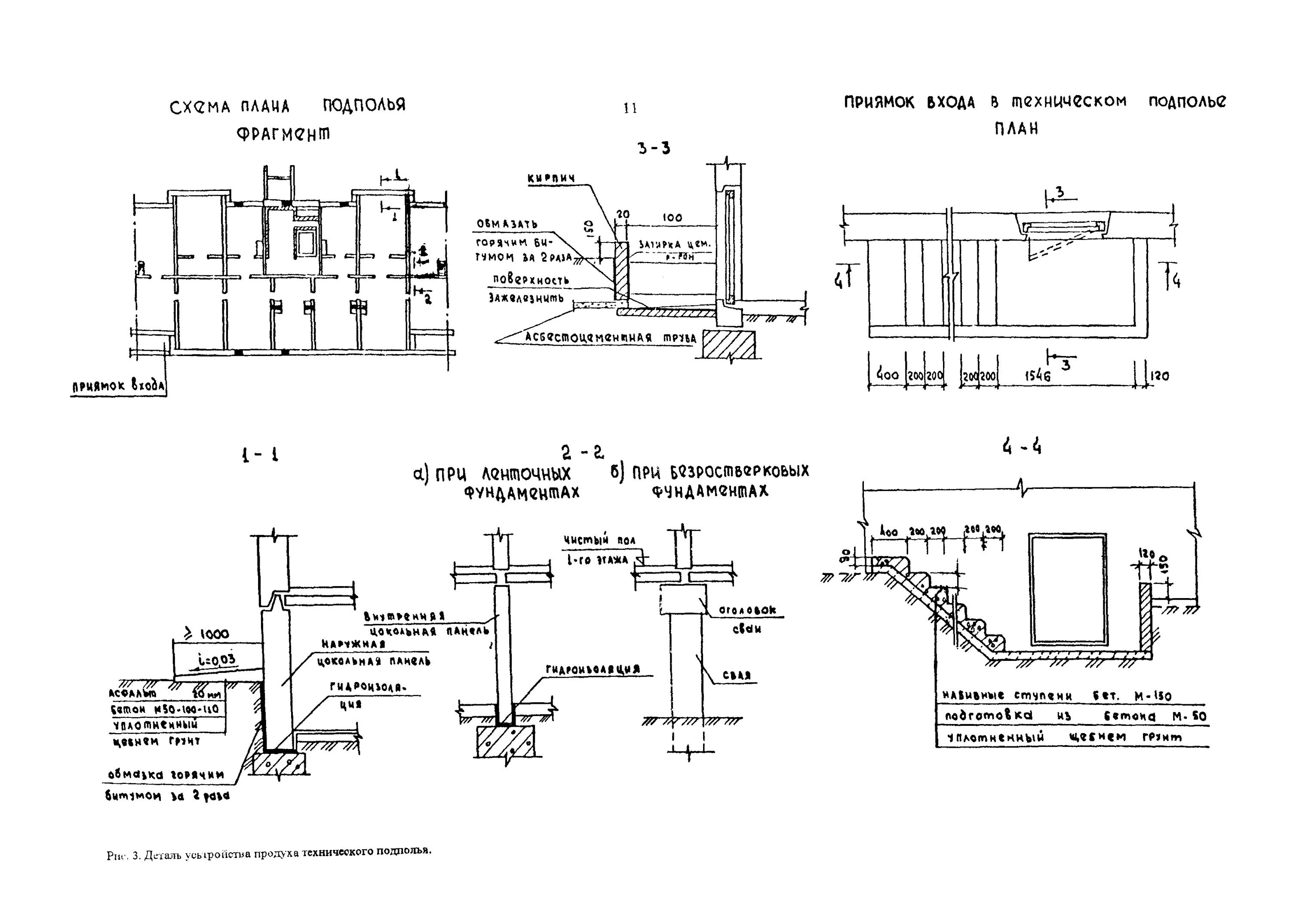
Сп подвал