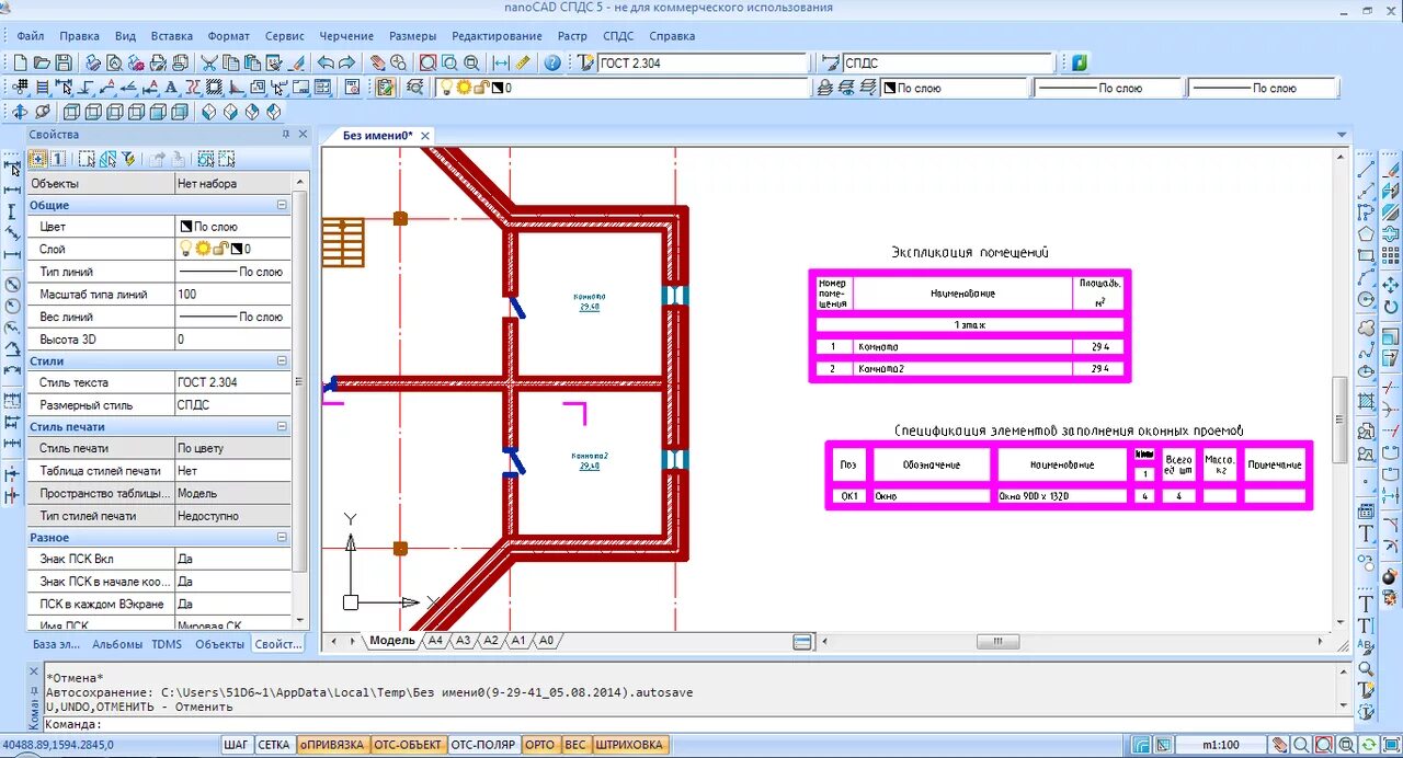
Спдс площадь