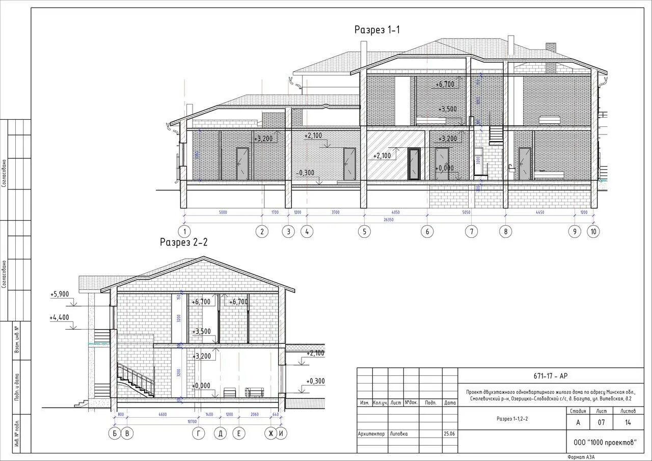
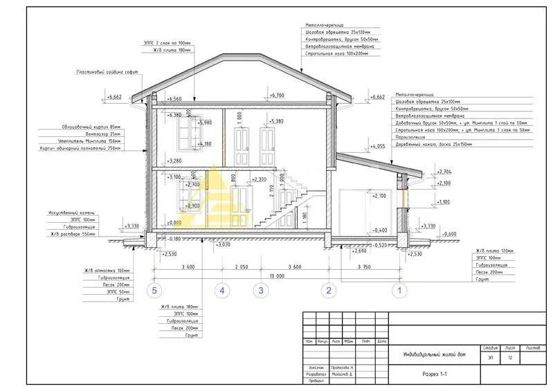
Стадия разработки разработка эскизного проекта