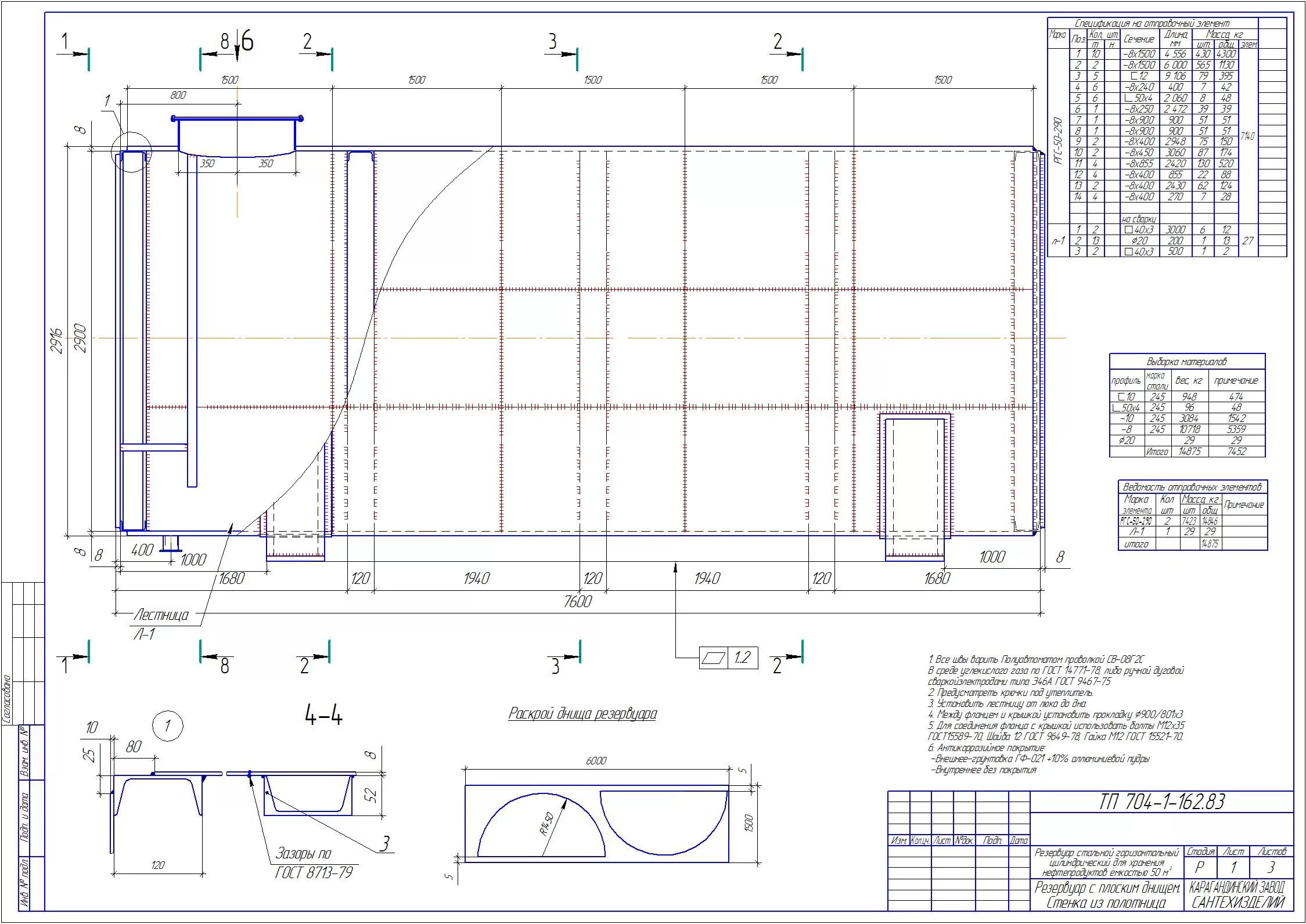
Статья резервуар