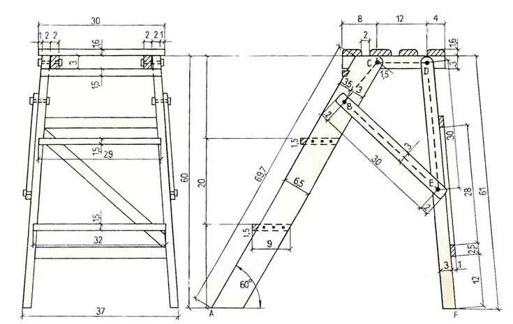
Стремянку как поставить