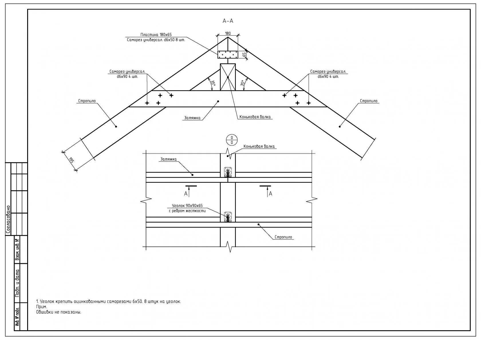
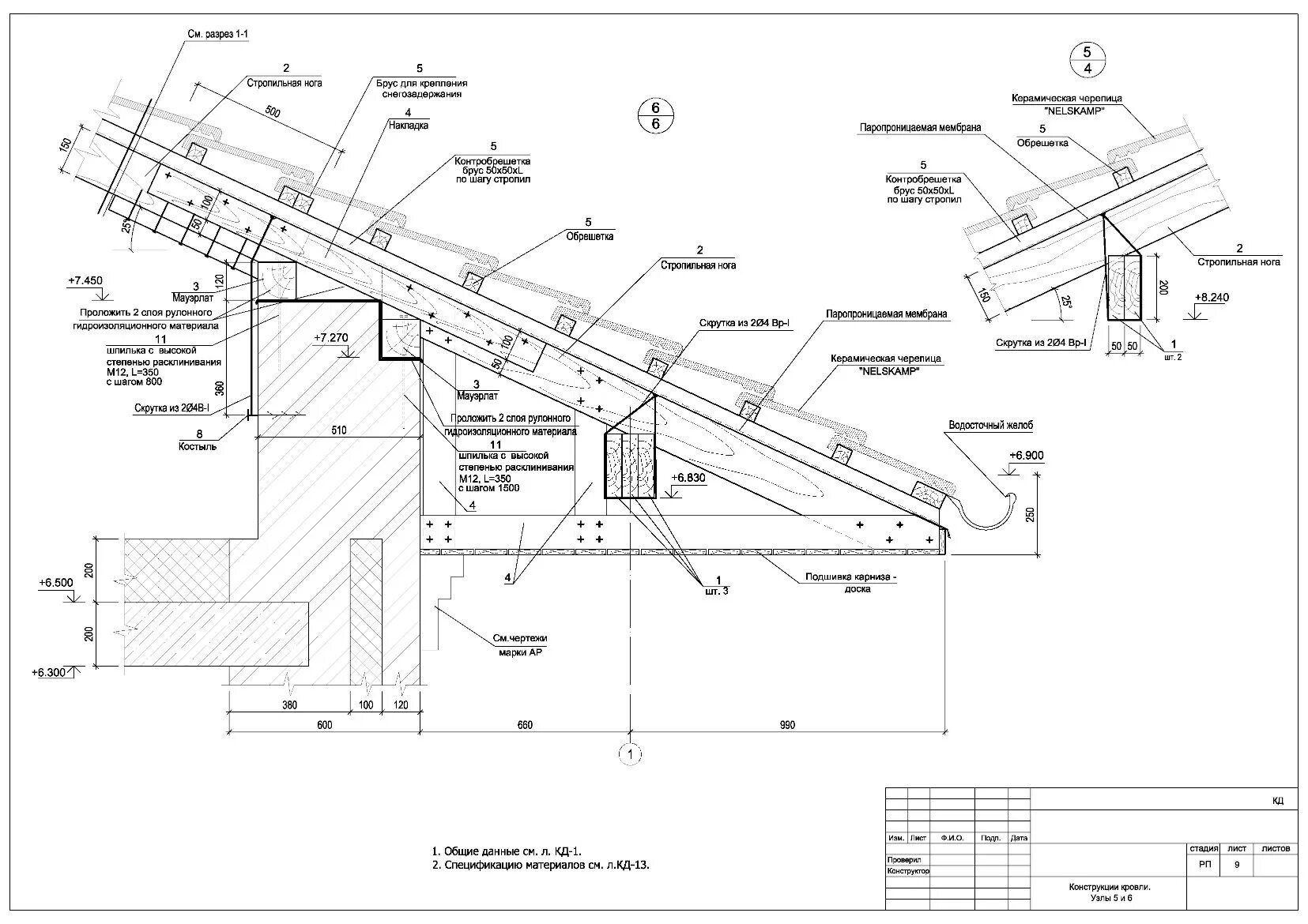
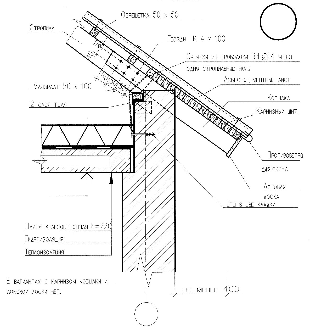
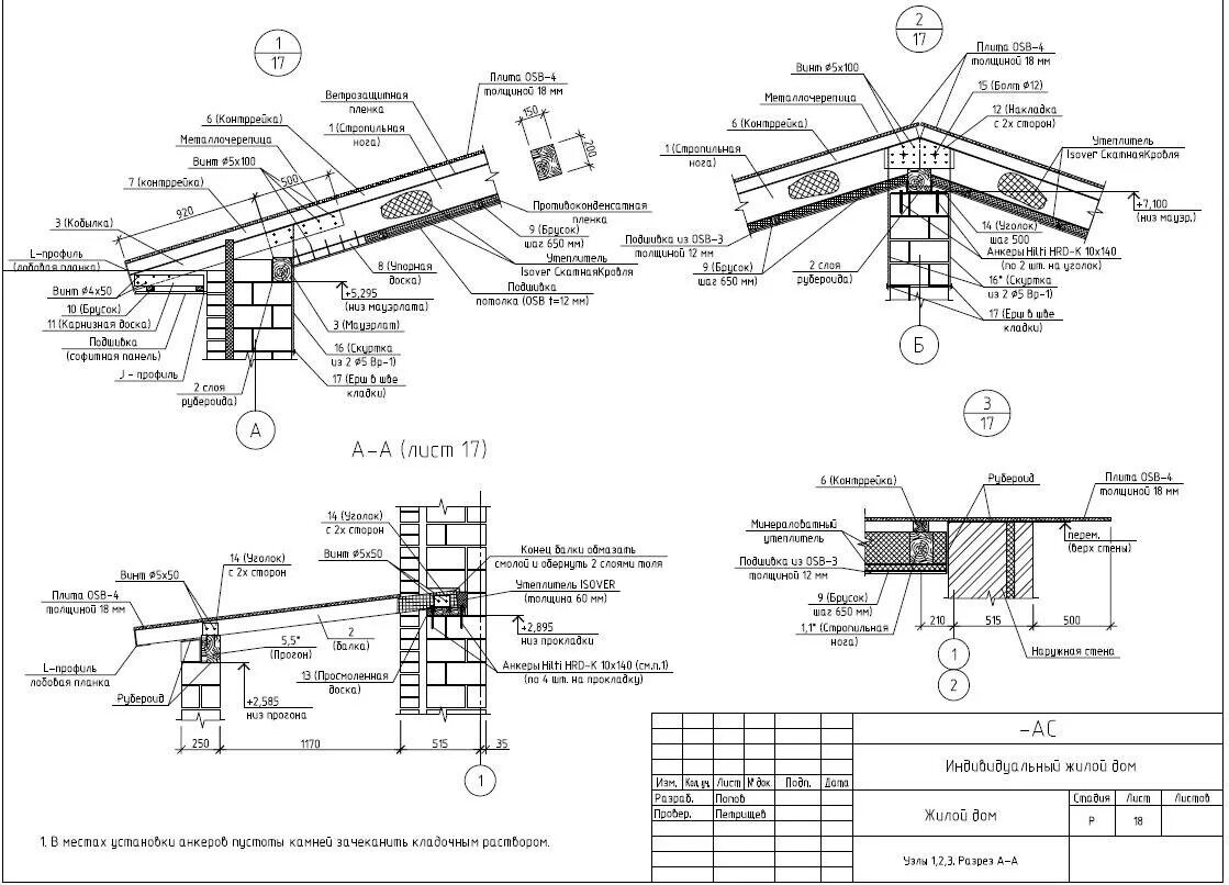
Стропильная кровля узлы