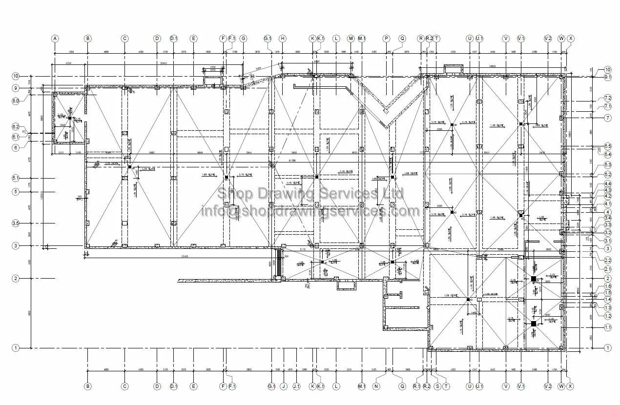
Structure plan