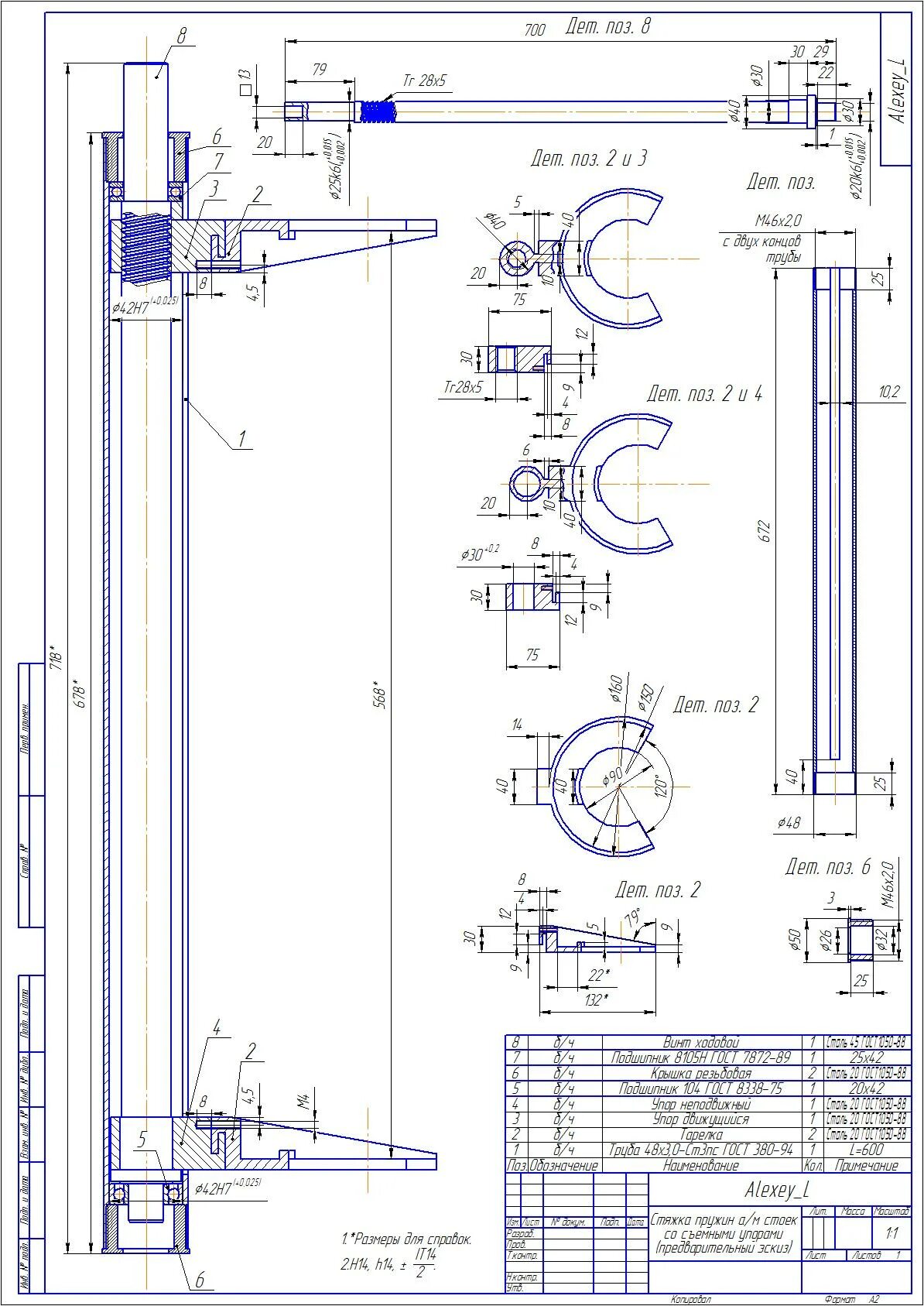
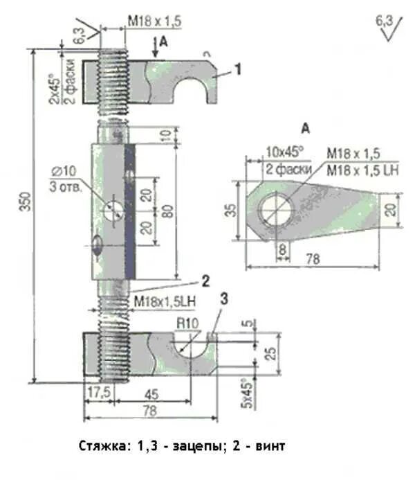
Стяжки пружин размеры