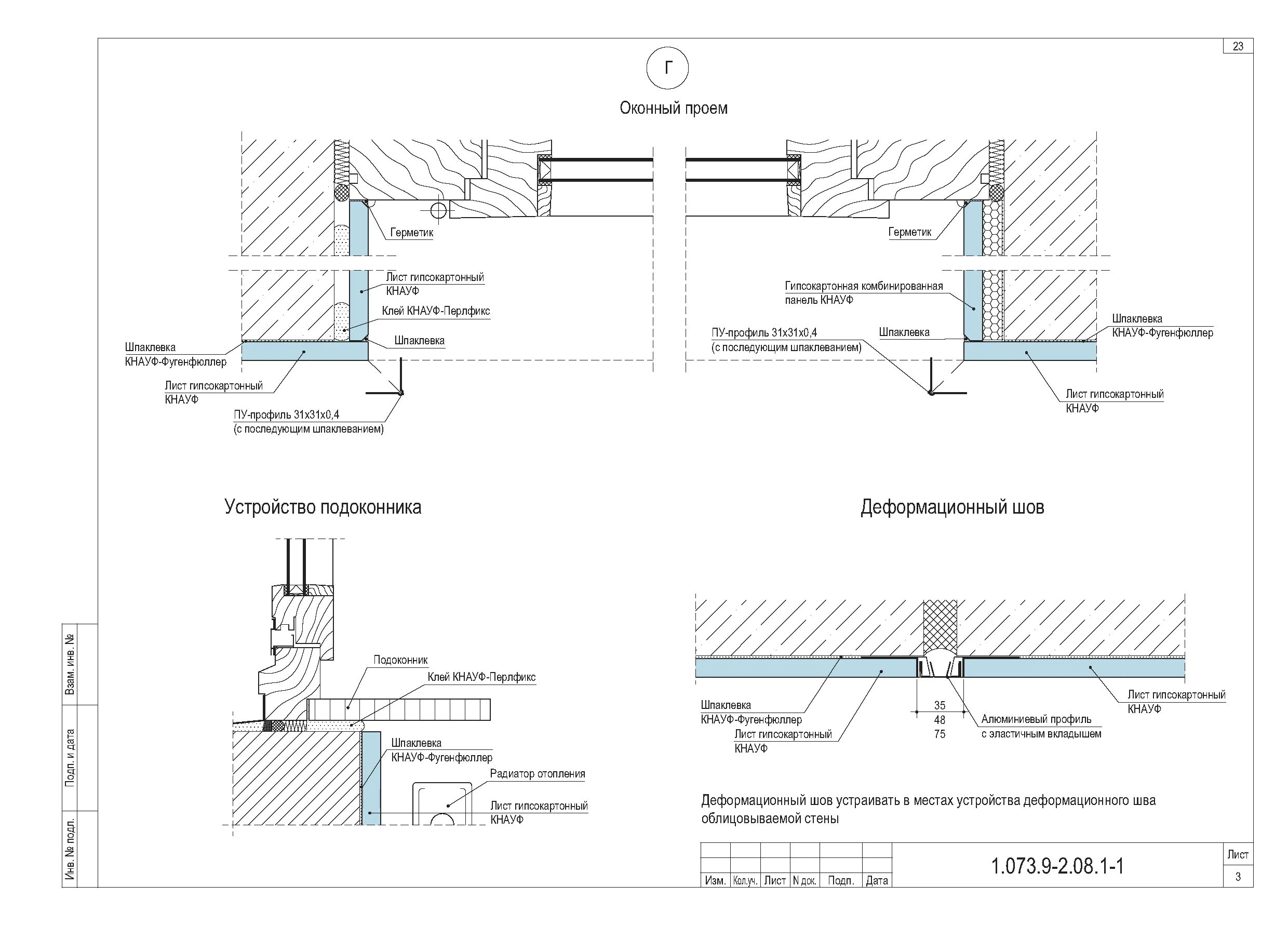
Стык кнауфа