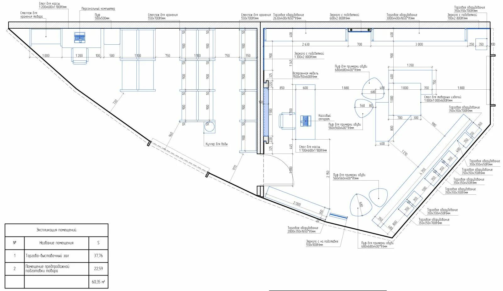
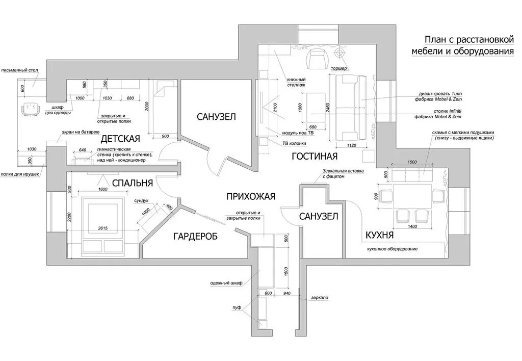
Существующая планировка