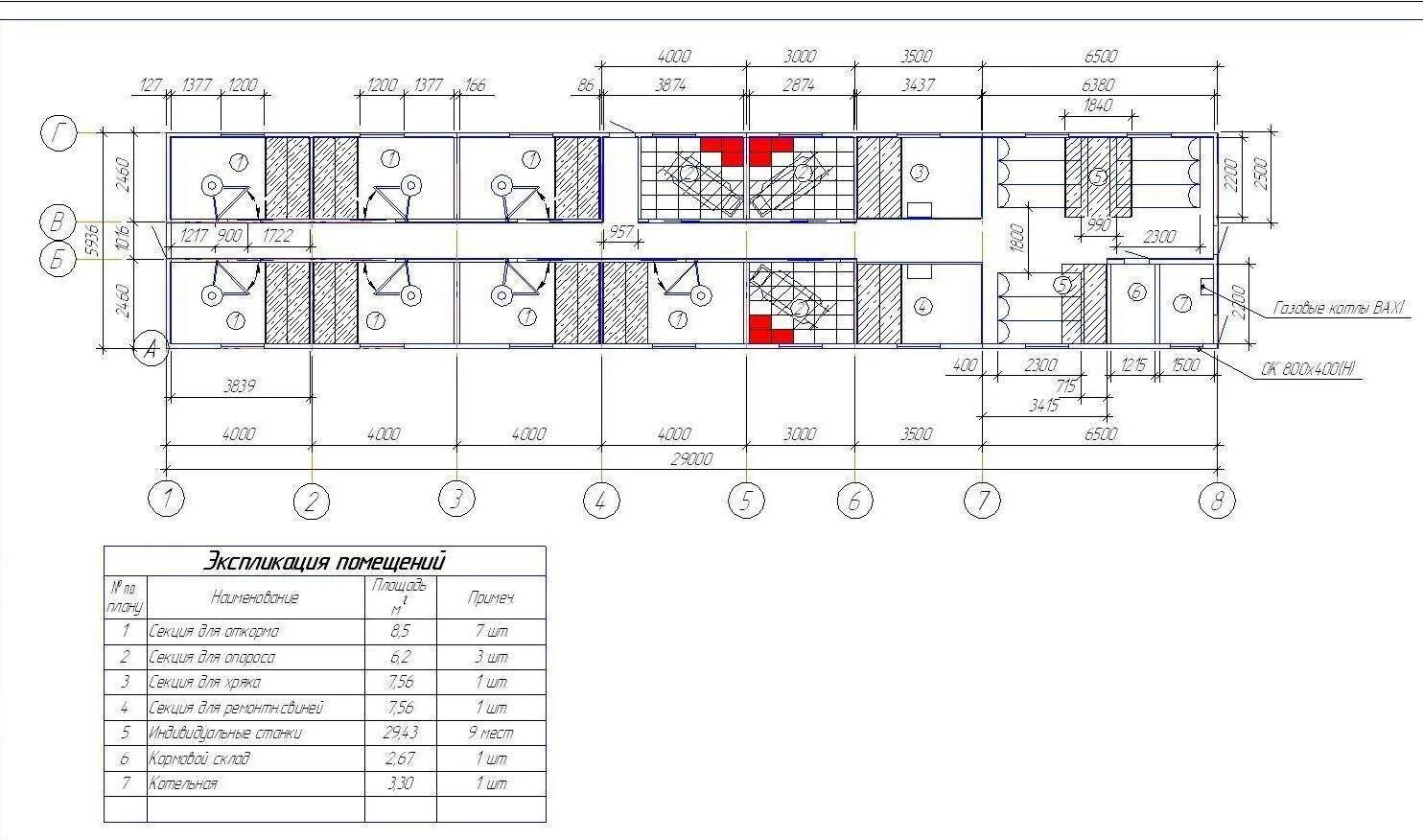
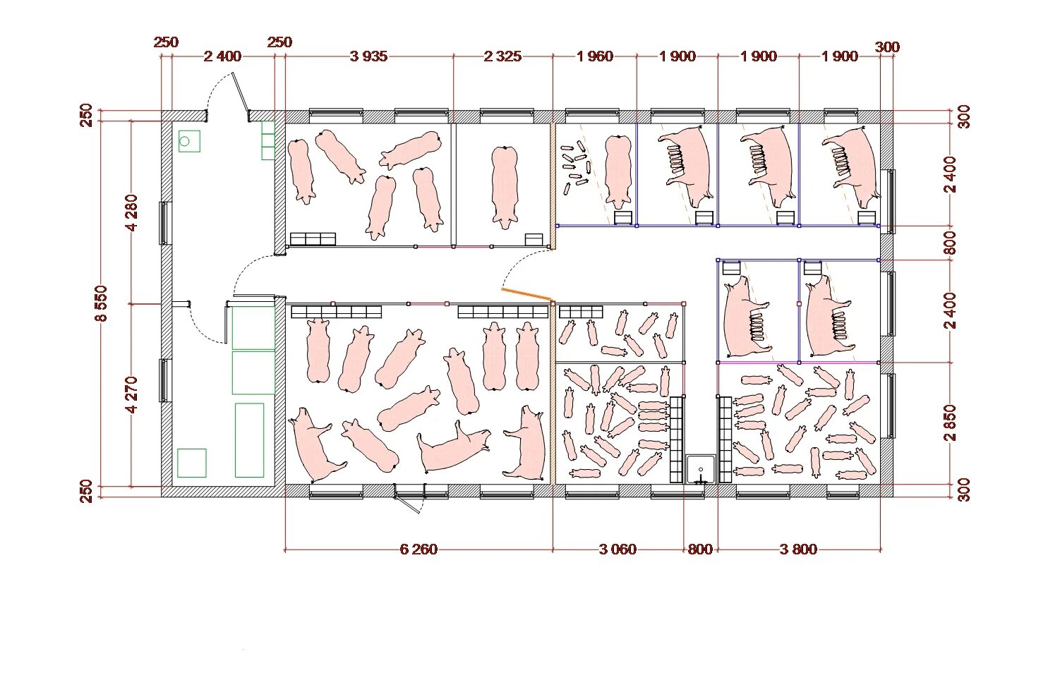
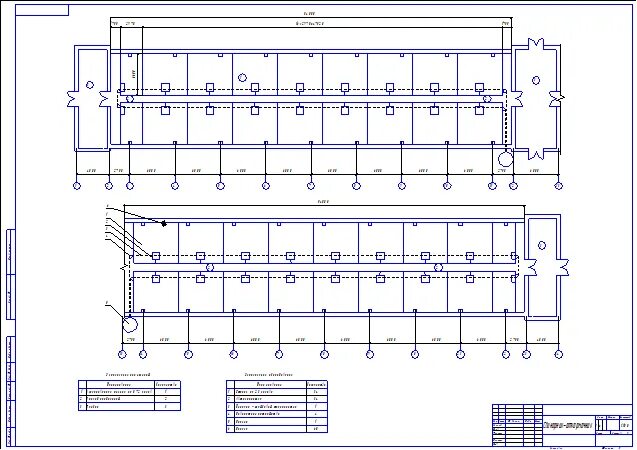
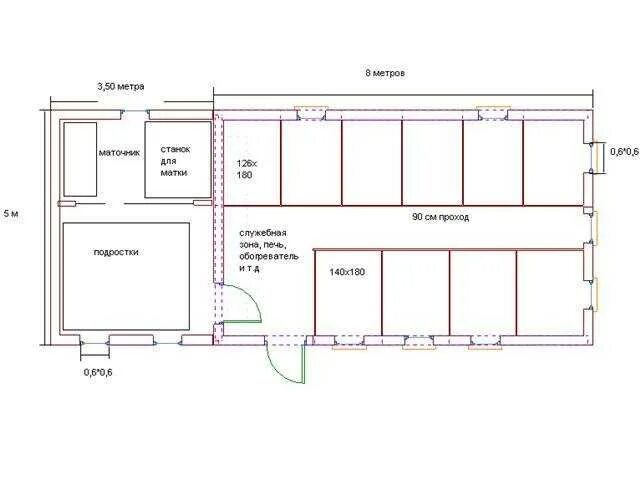
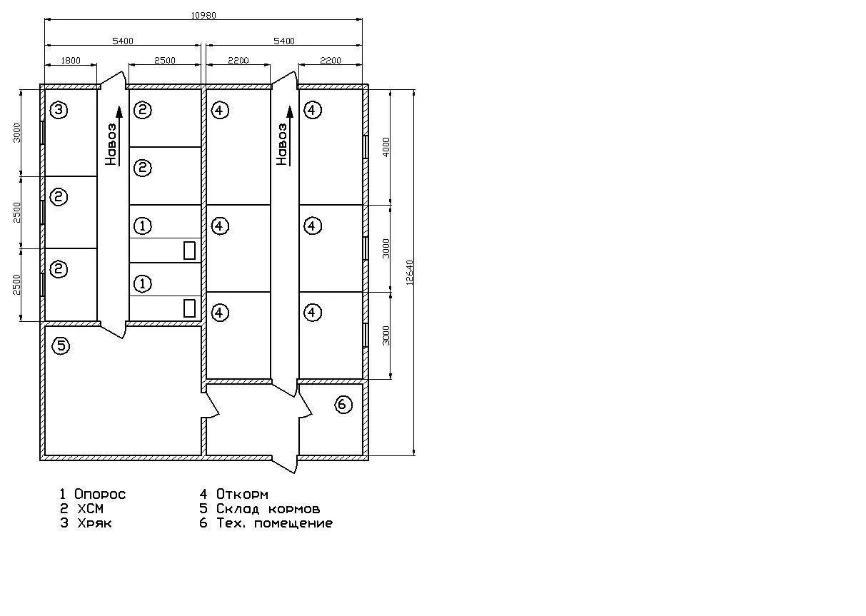
Свинарник размеры